Swimming pools
|
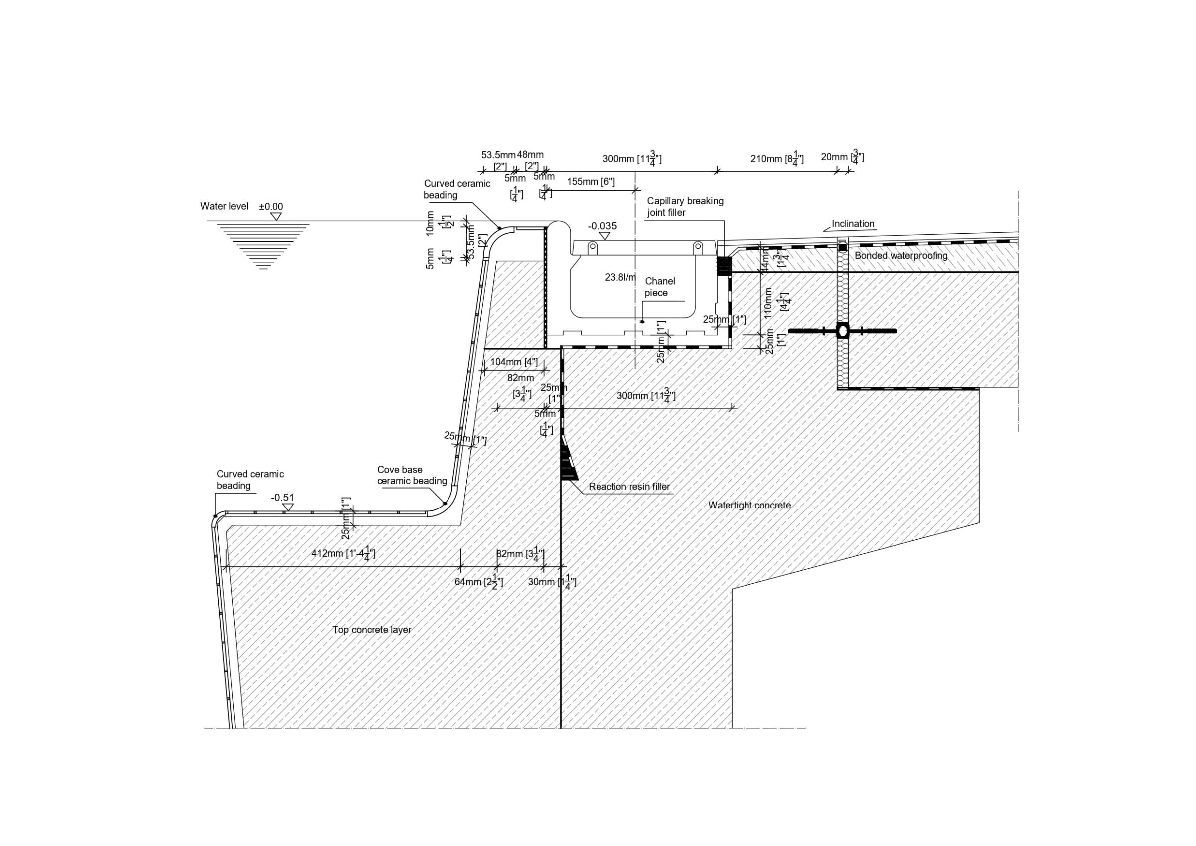
curved and cove base ceramic beading pool edge system
Item Saved
Item Removed







