Swimming pools
|
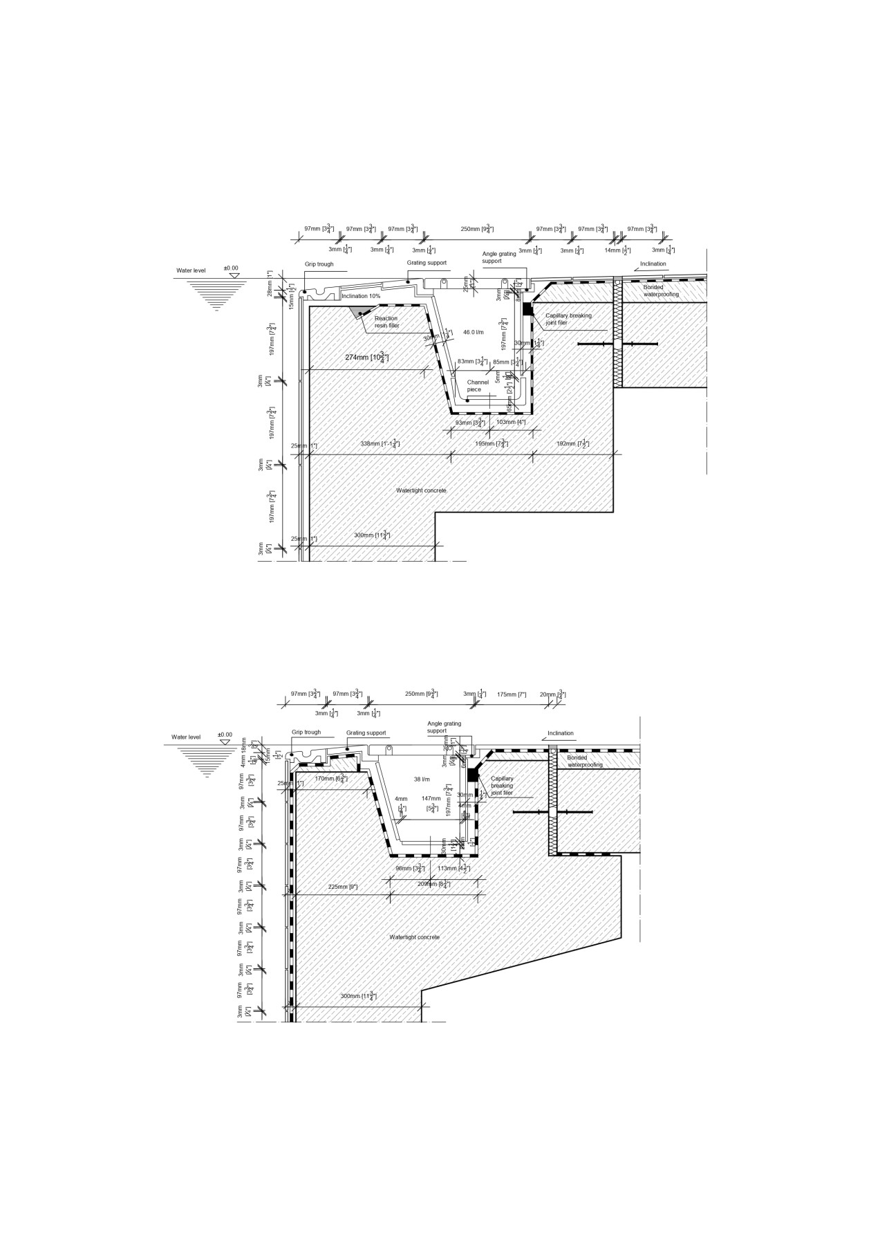
high water level- ''Finnish'' overflow pool edge system
Item Saved
Item Removed













