Swimming pools
|
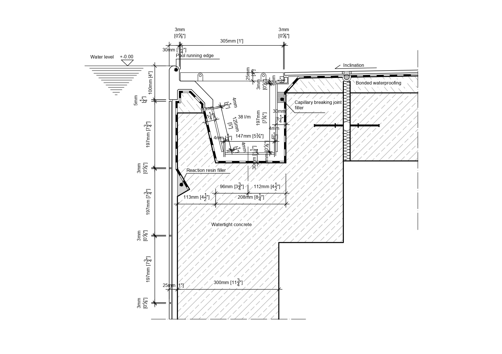
high water level-overflow channel pool edge system
Item Saved
Item Removed




