Swimming pools
|
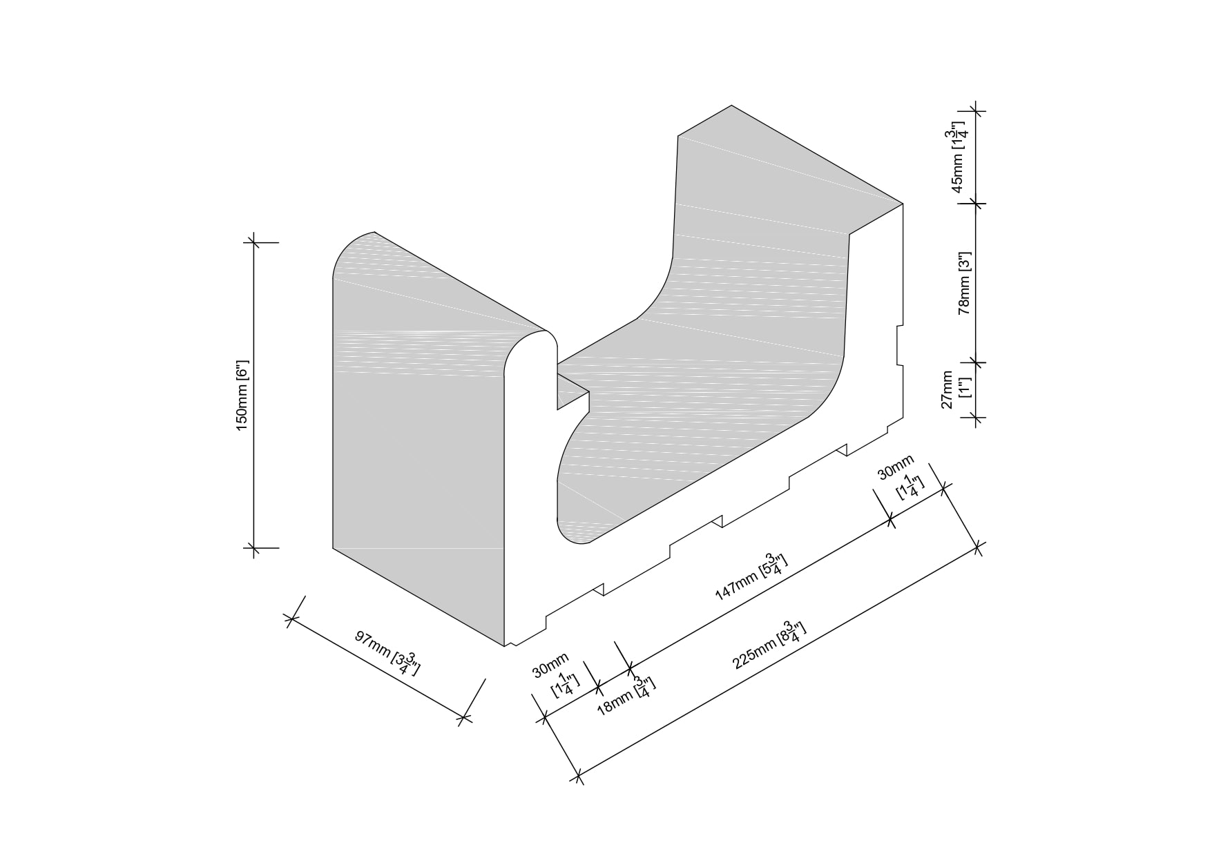
high water level-small overflow channel pool edge system
Item Saved
Item Removed





