Swimming pools
|
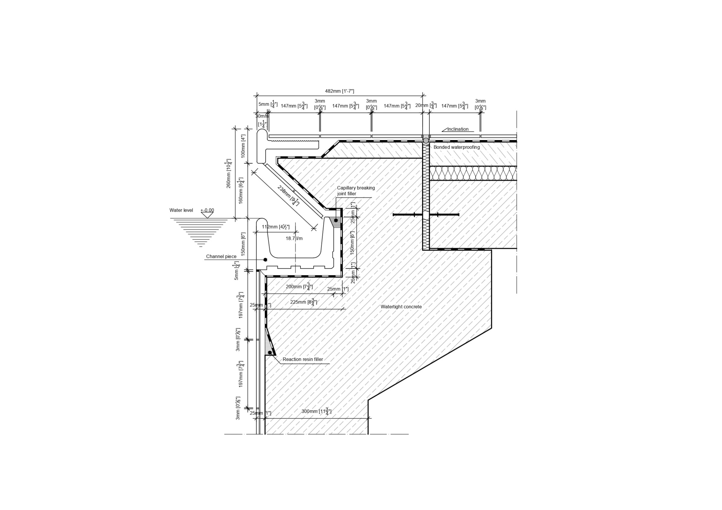
low water level-large overflow channel pool edge system
Item Saved
Item Removed





