Swimming pools
|
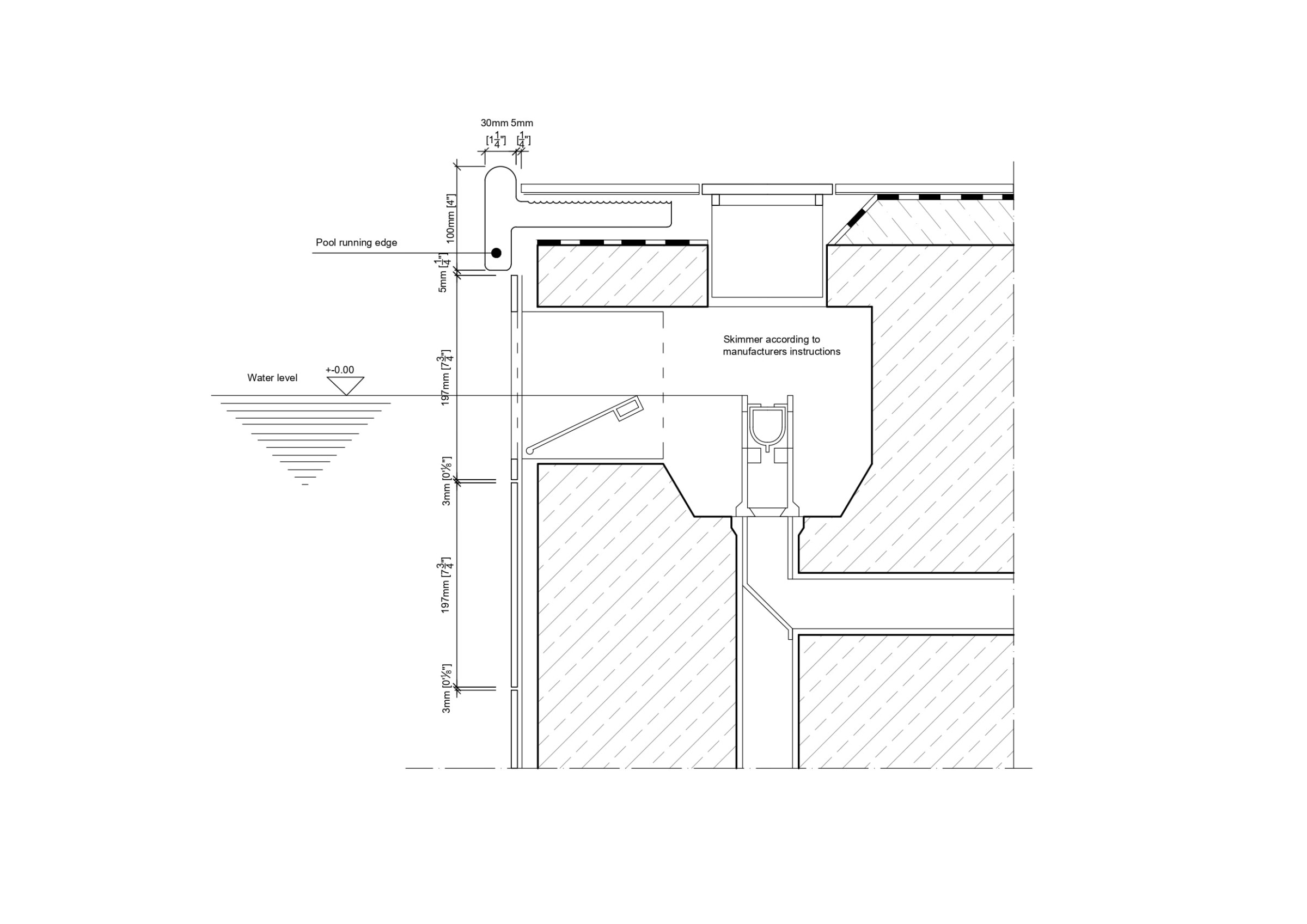
low water level-pool edge piece pool edge system
Item Saved
Item Removed




