Swimming pools
|
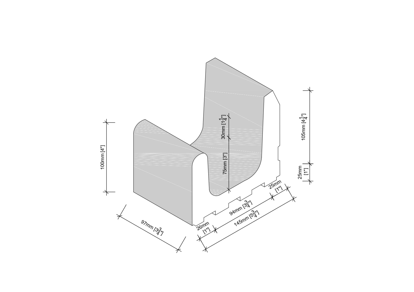
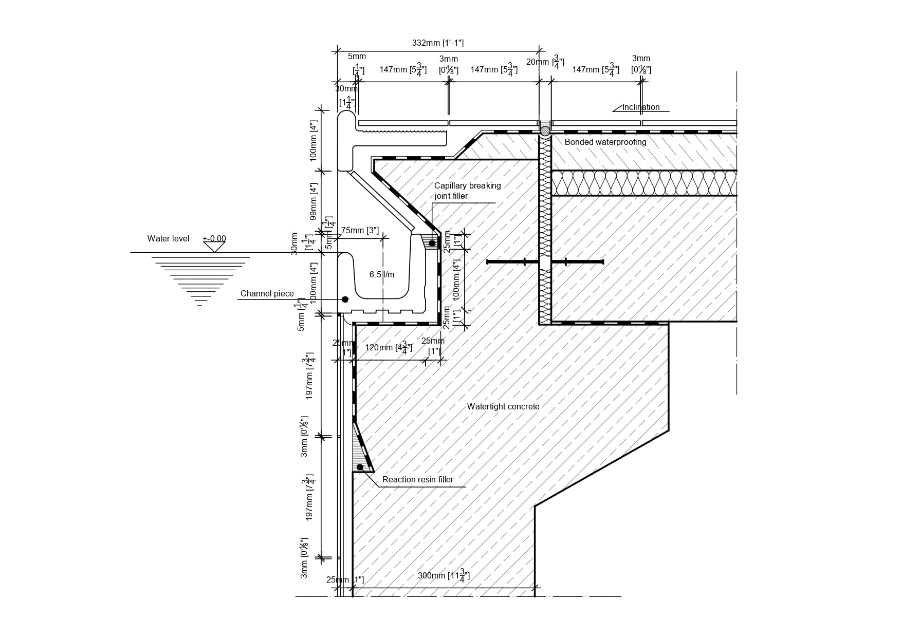
low water level-small overflow channel pool edge system
Item Saved
Item Removed





