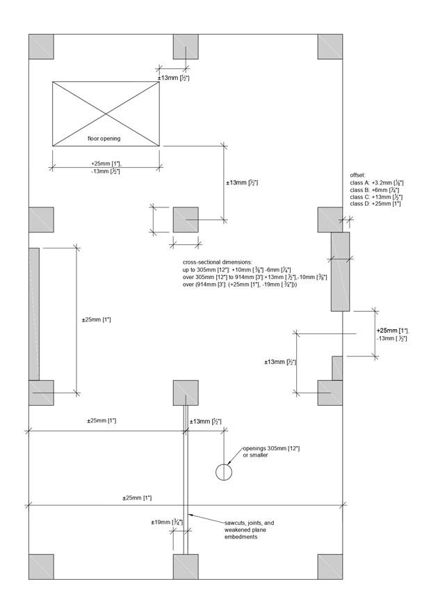
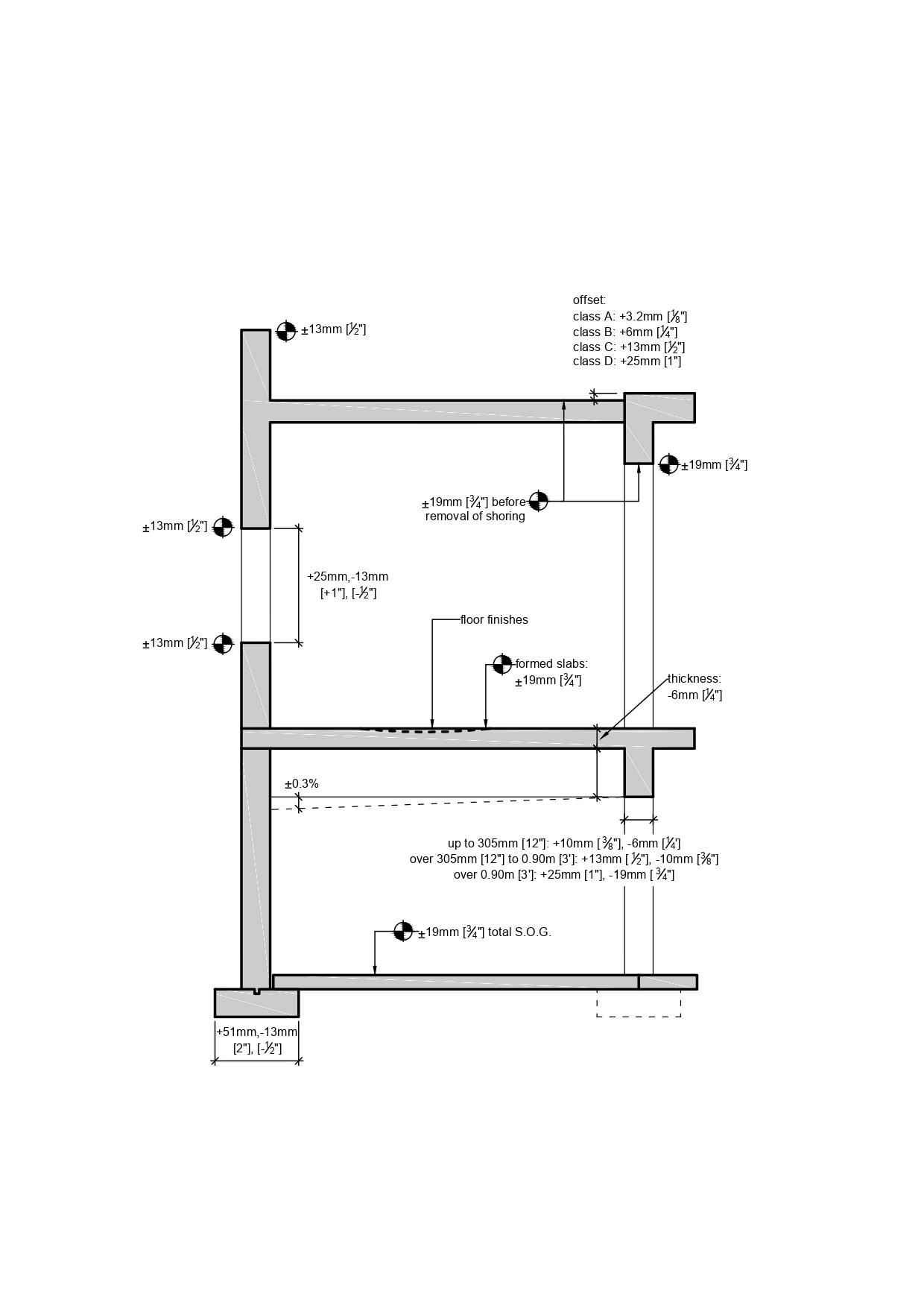
Concrete details
|
Cast in place concrete
Item Saved
Item Removed



