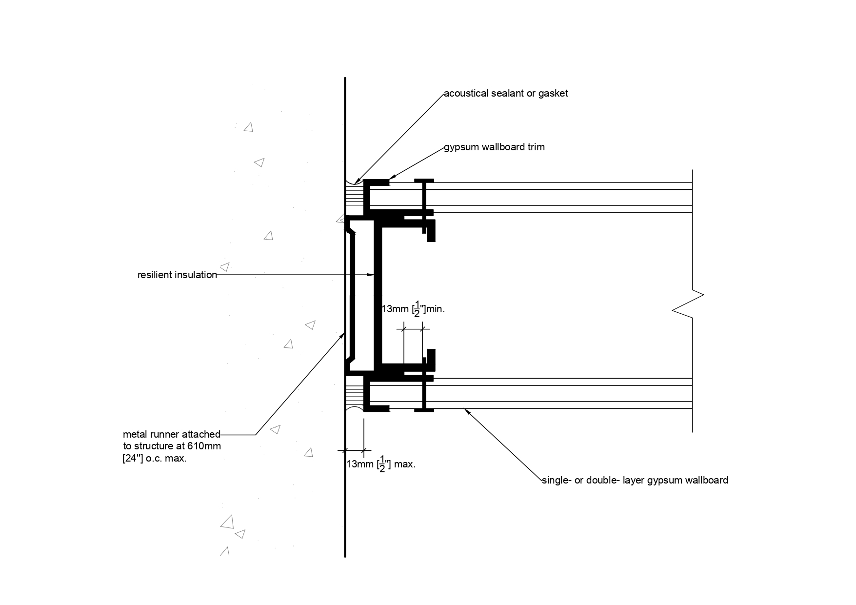
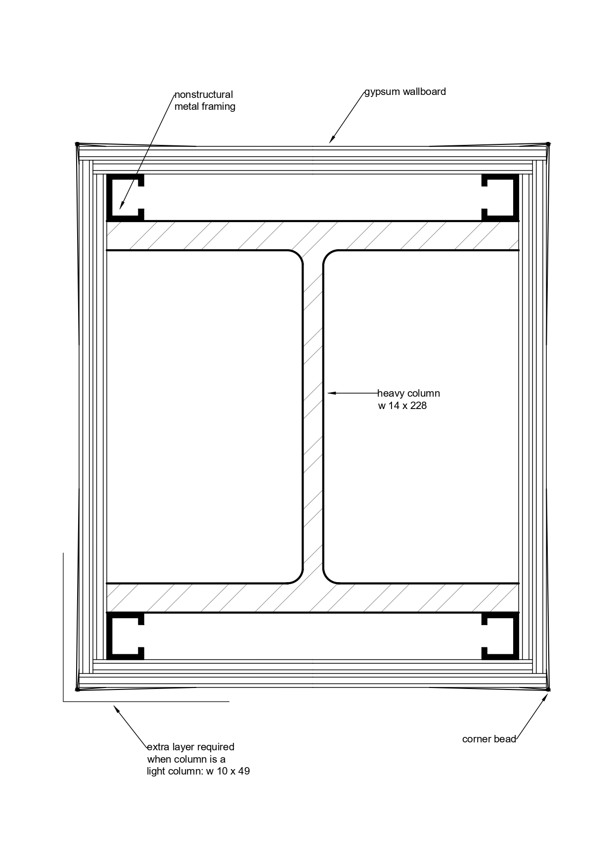
Finish details
|
Gypsum wallboard
Item Saved
Item Removed













