Concrete details
|
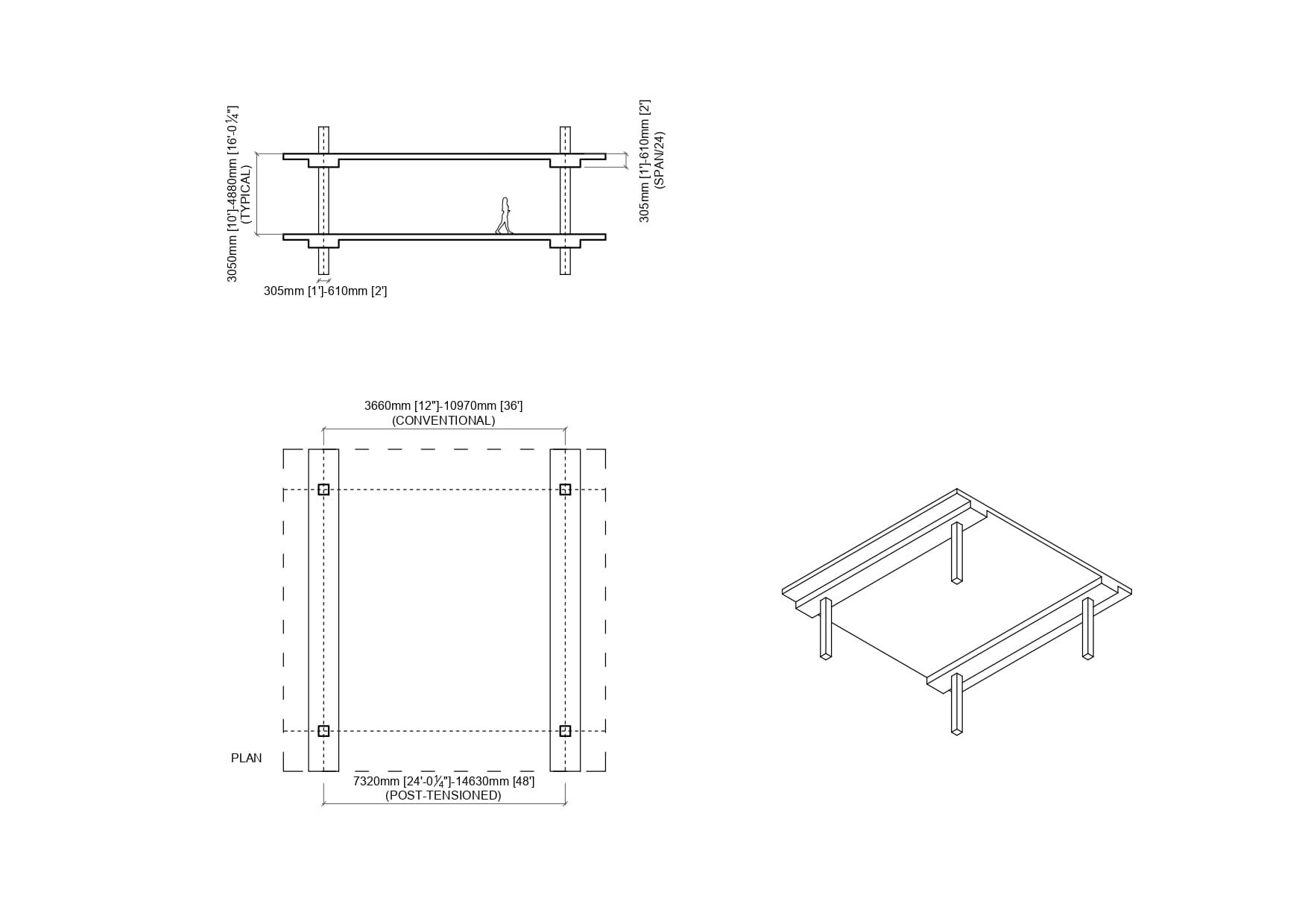
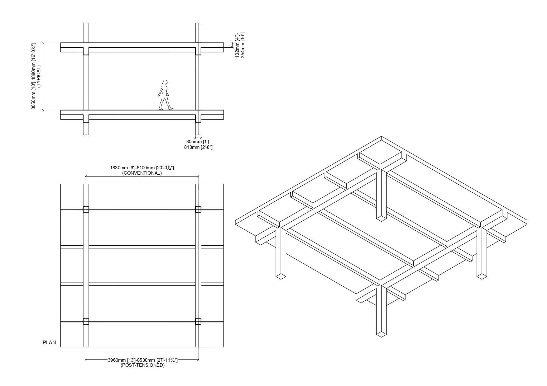
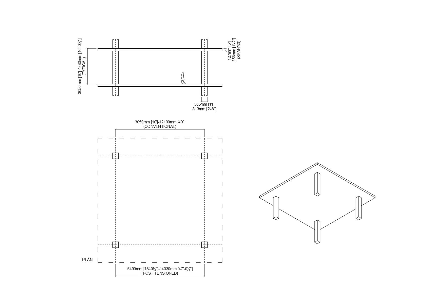
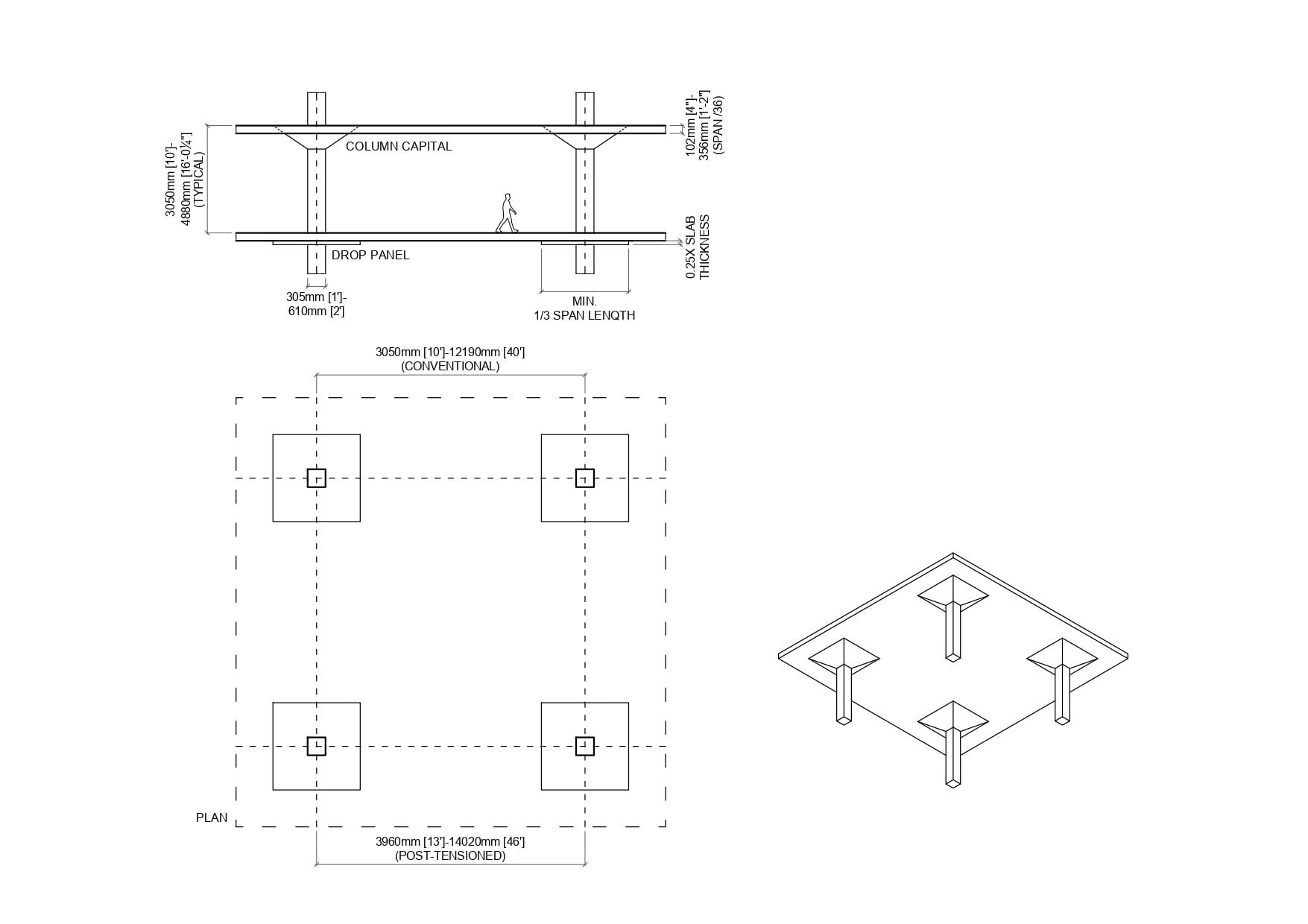
Concrete floor systems
Item Saved
Item Removed








