Curtain wall details
|
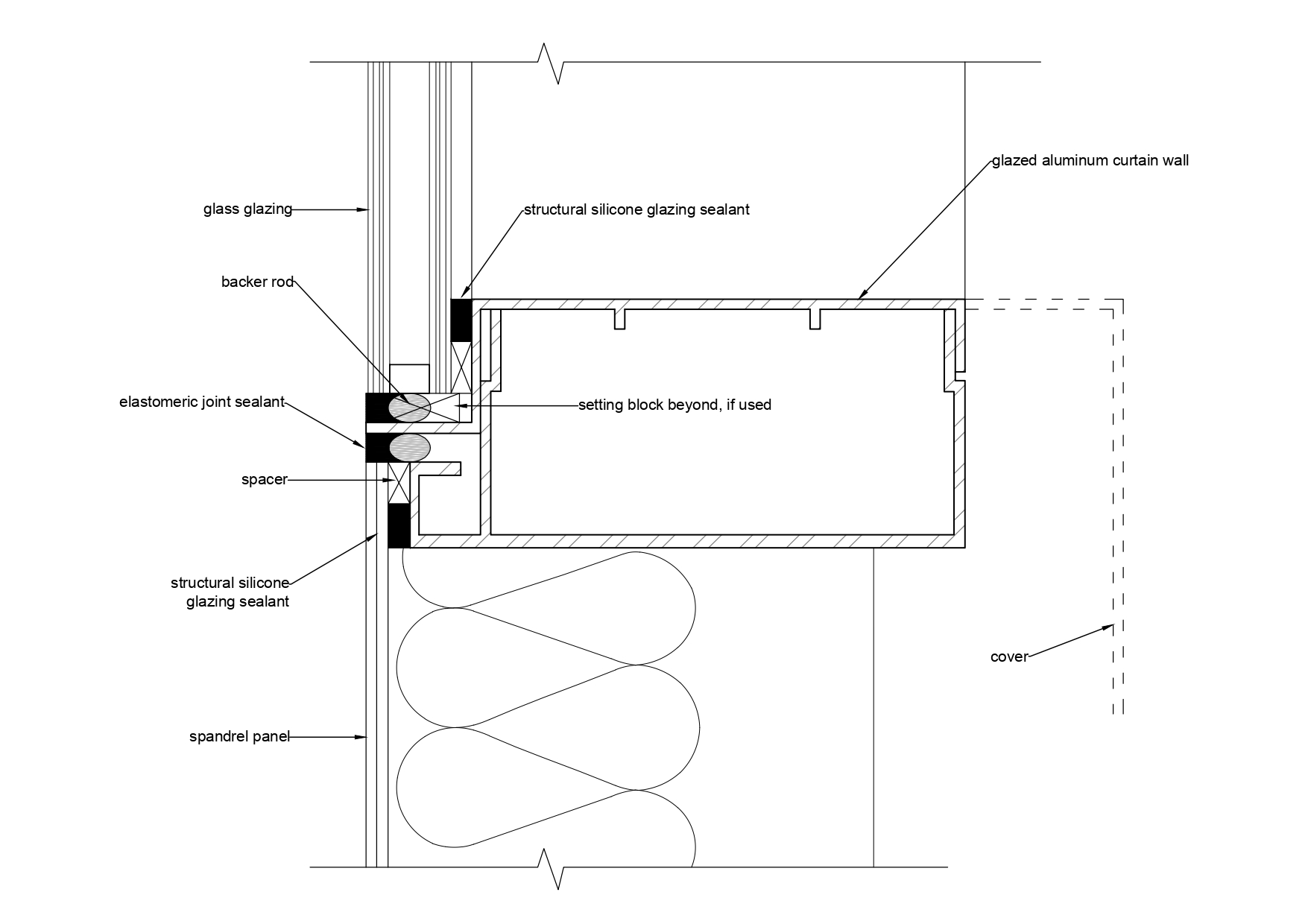
Structural silicone glazing
Item Saved
Item Removed

