Health care
|
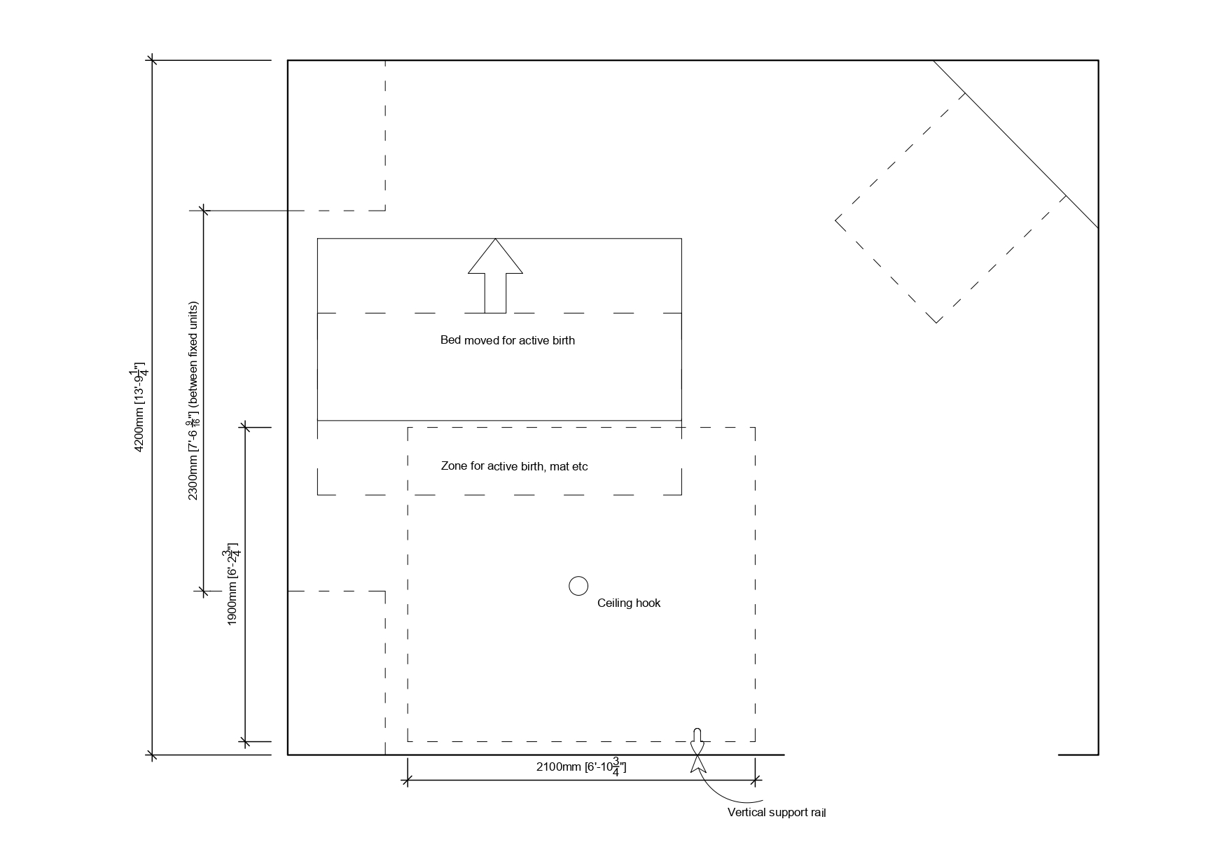
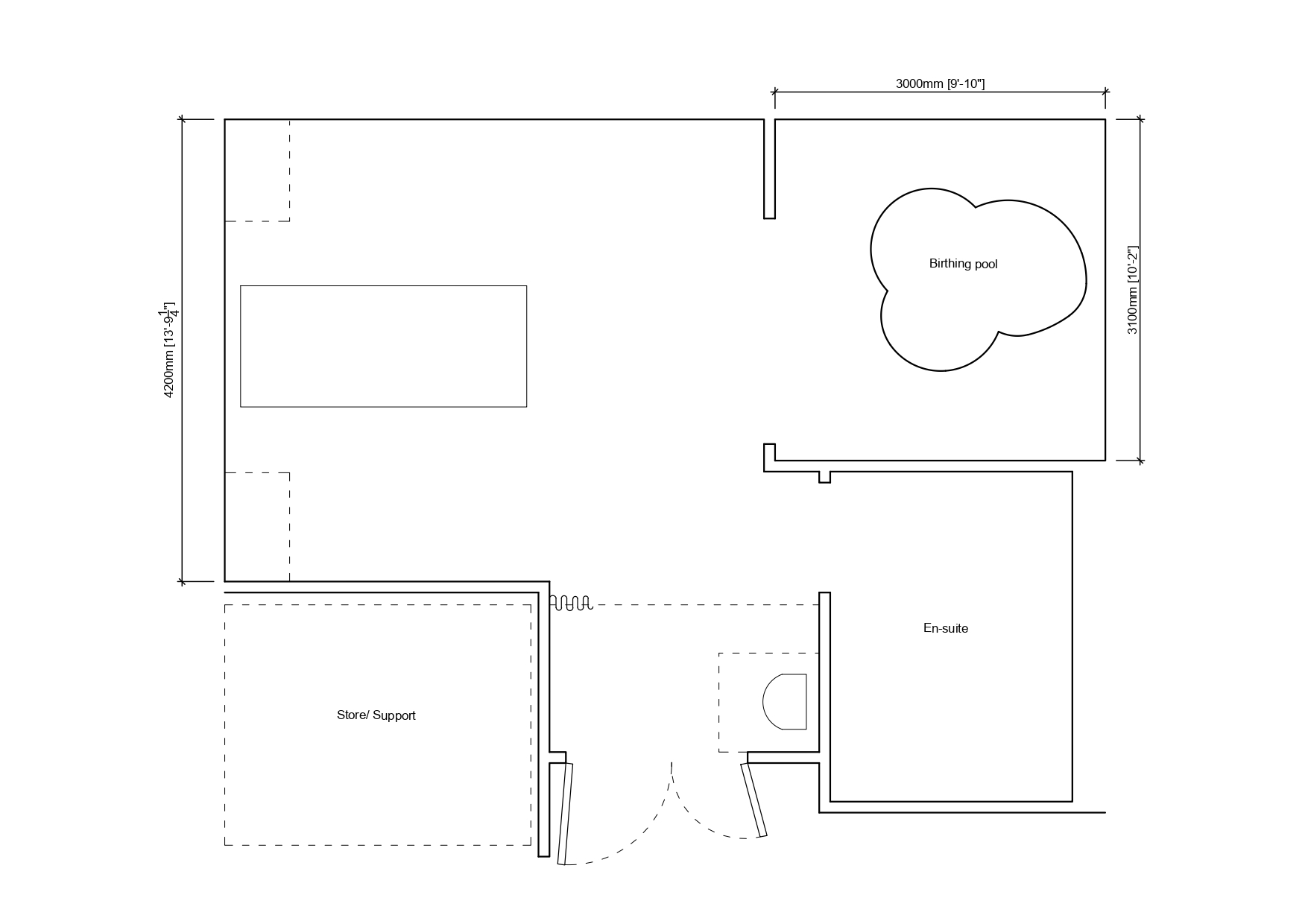
Birthing facilities
Item Saved
Item Removed











