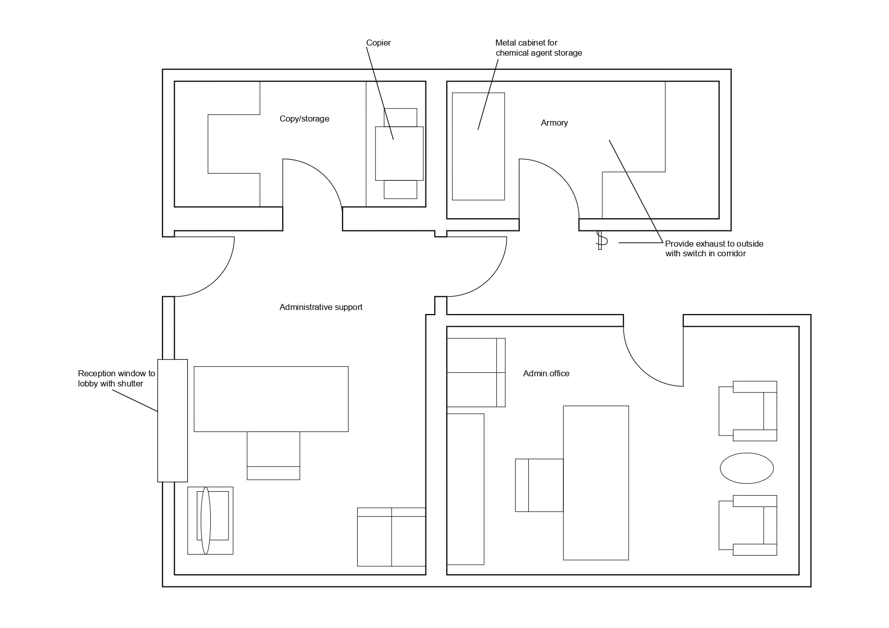
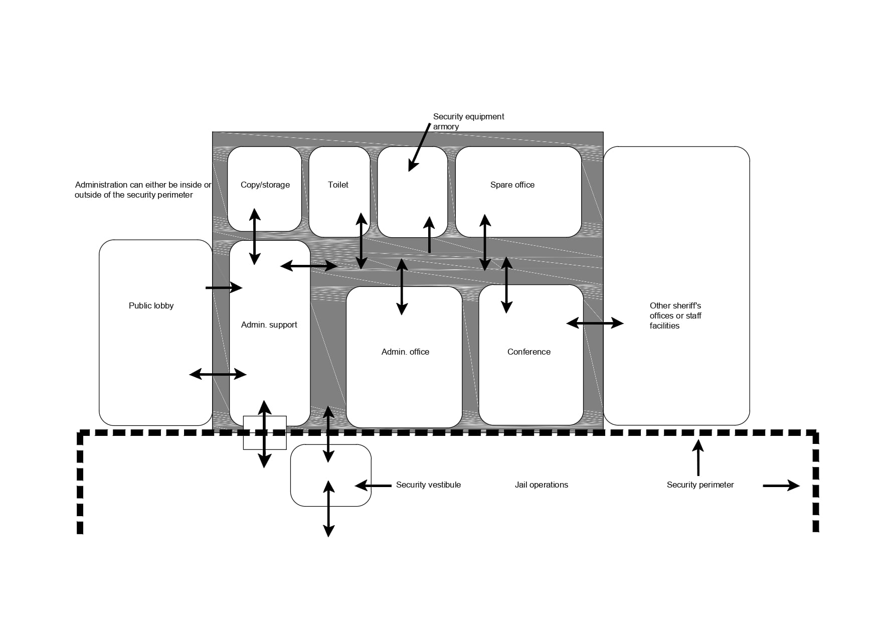
Jails
|
Administration and public areas
Item Saved
Item Removed




