Handicap
|
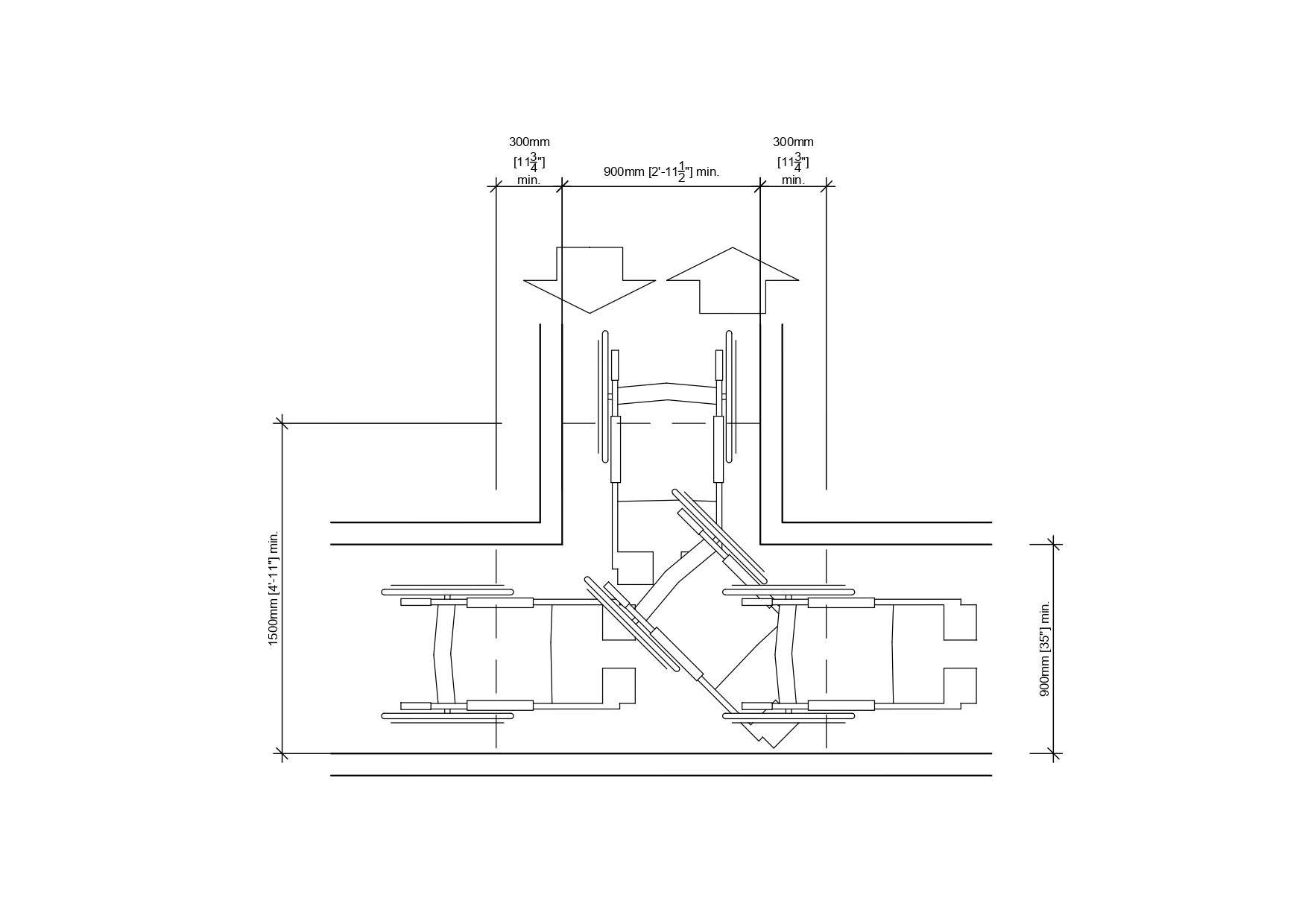
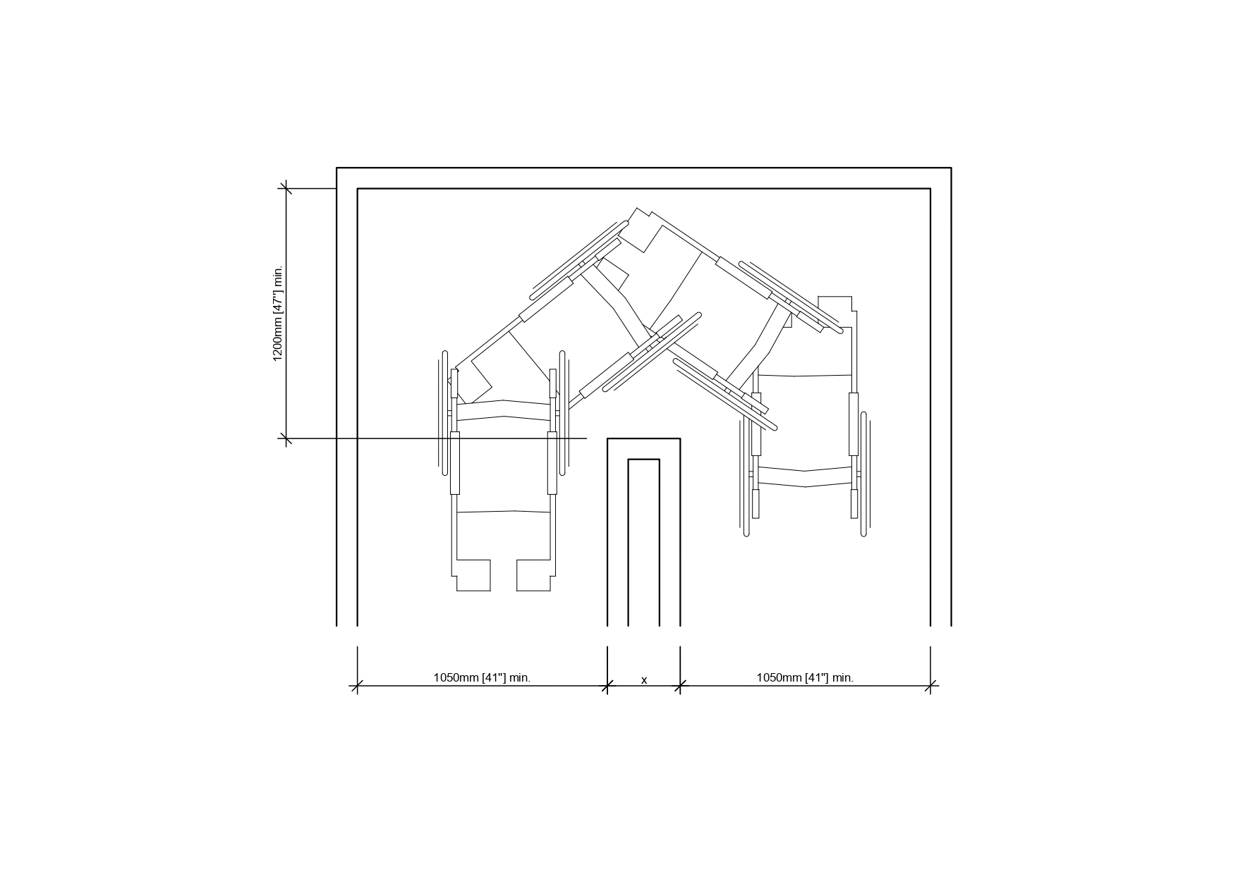
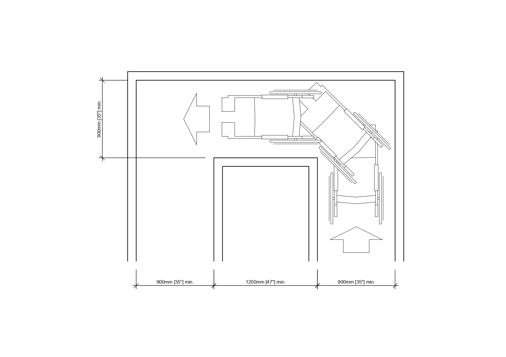
Circulation and passing spaces
Item Saved
Item Removed











