Brick work
|
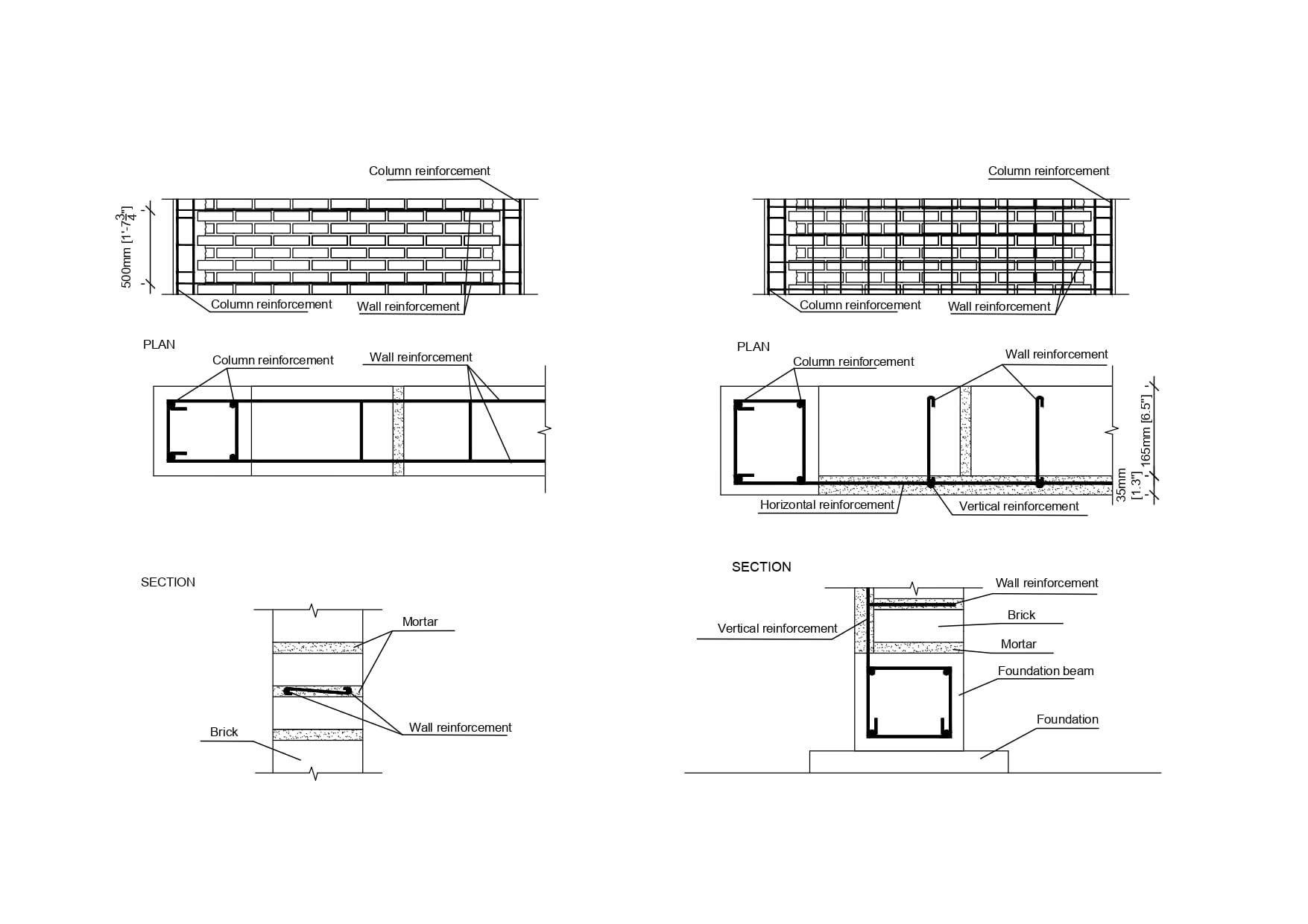
Reinforced concrete brick construction
Item Saved
Item Removed






