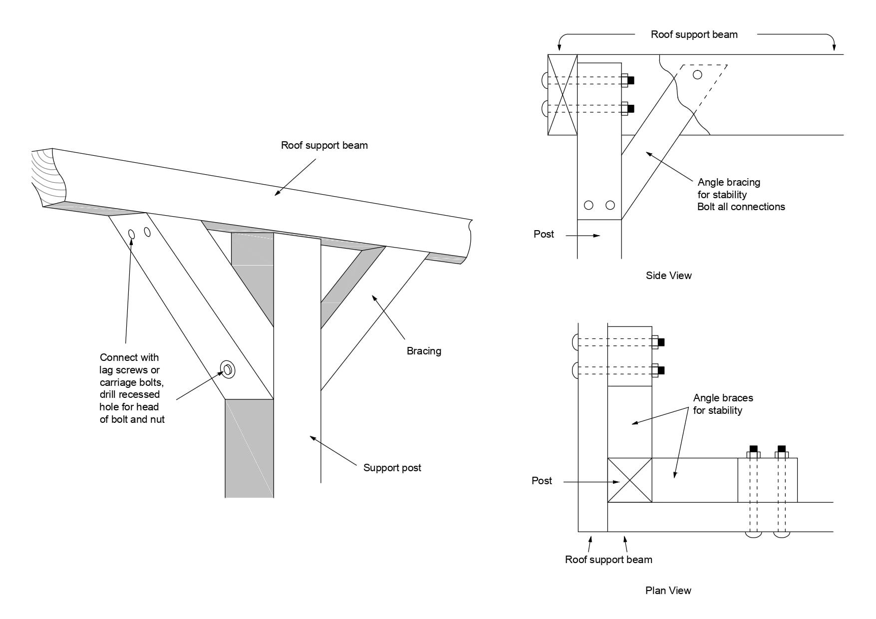
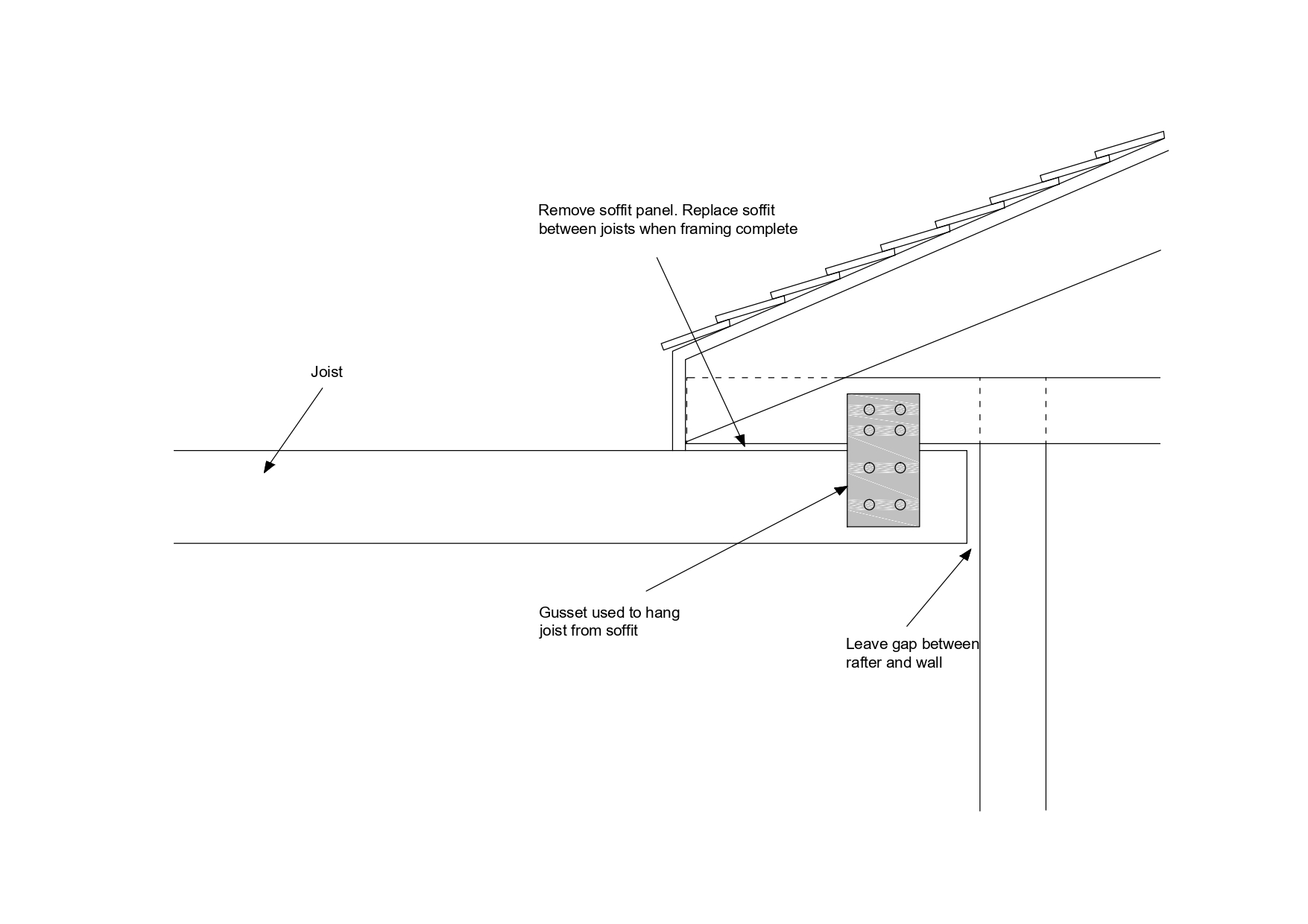
Landscape construction
|
overhead structures
Item Saved
Item Removed










