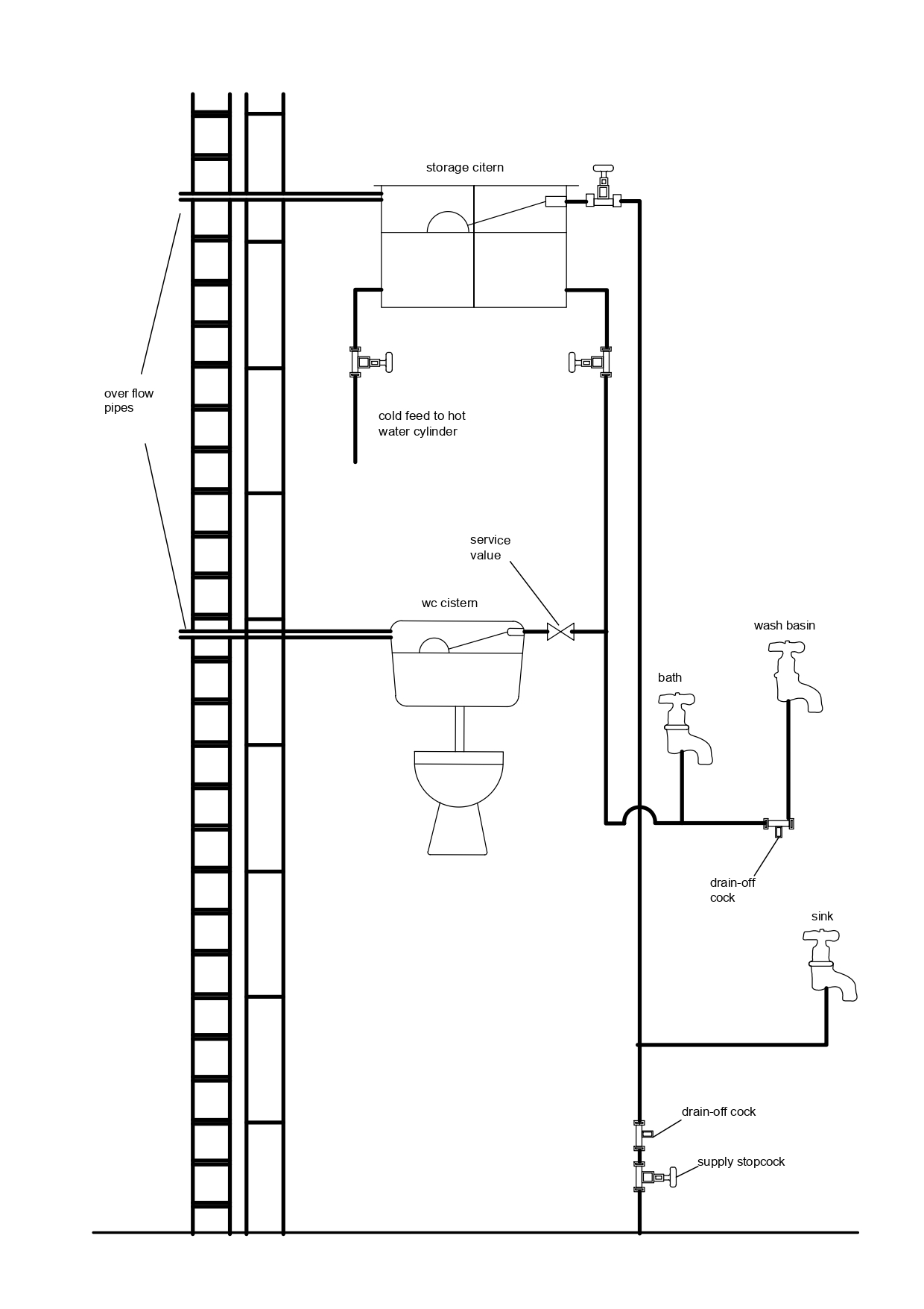
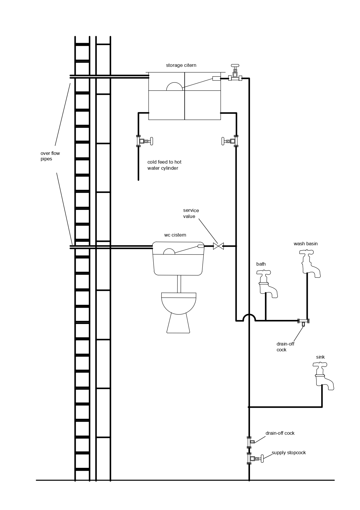
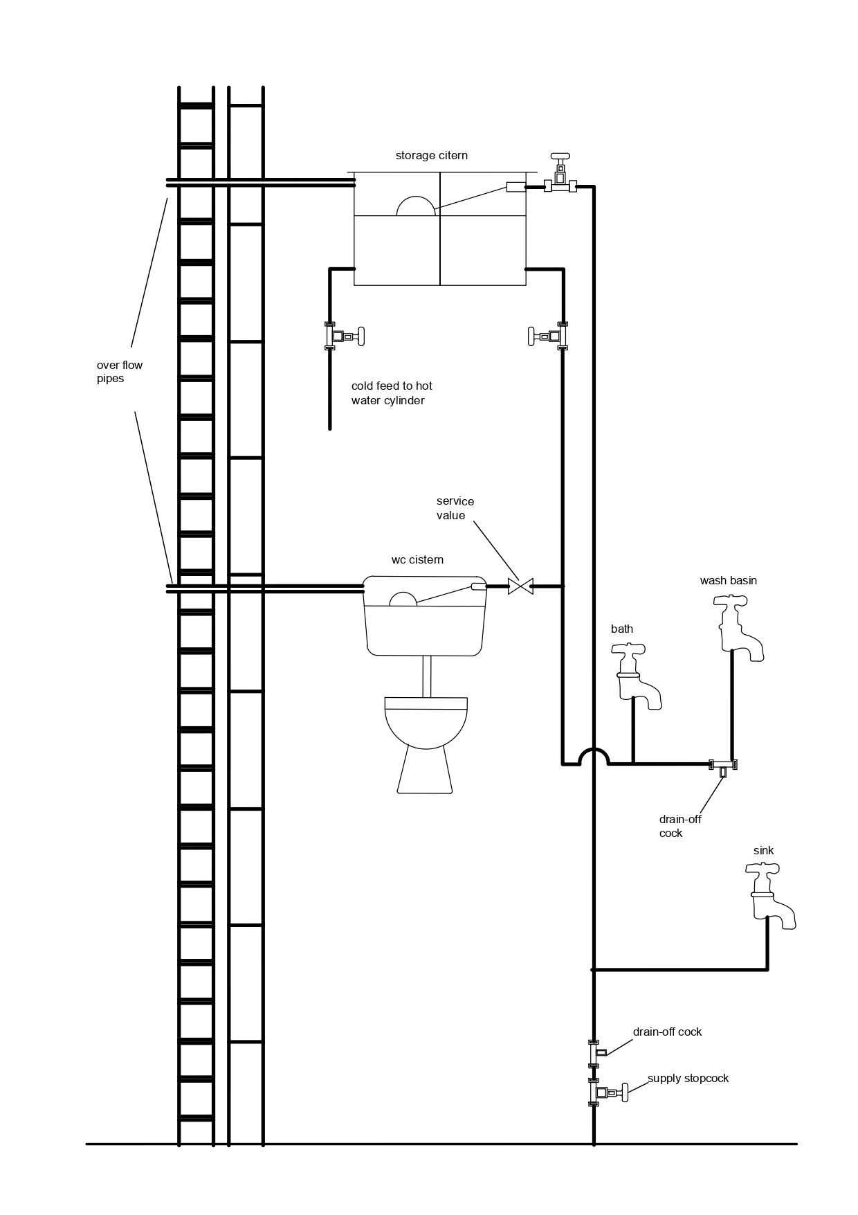
Domestic plumbing
|
Cold supply inside the dwelling
Item Saved
Item Removed



