Theaters & cinemas design
|
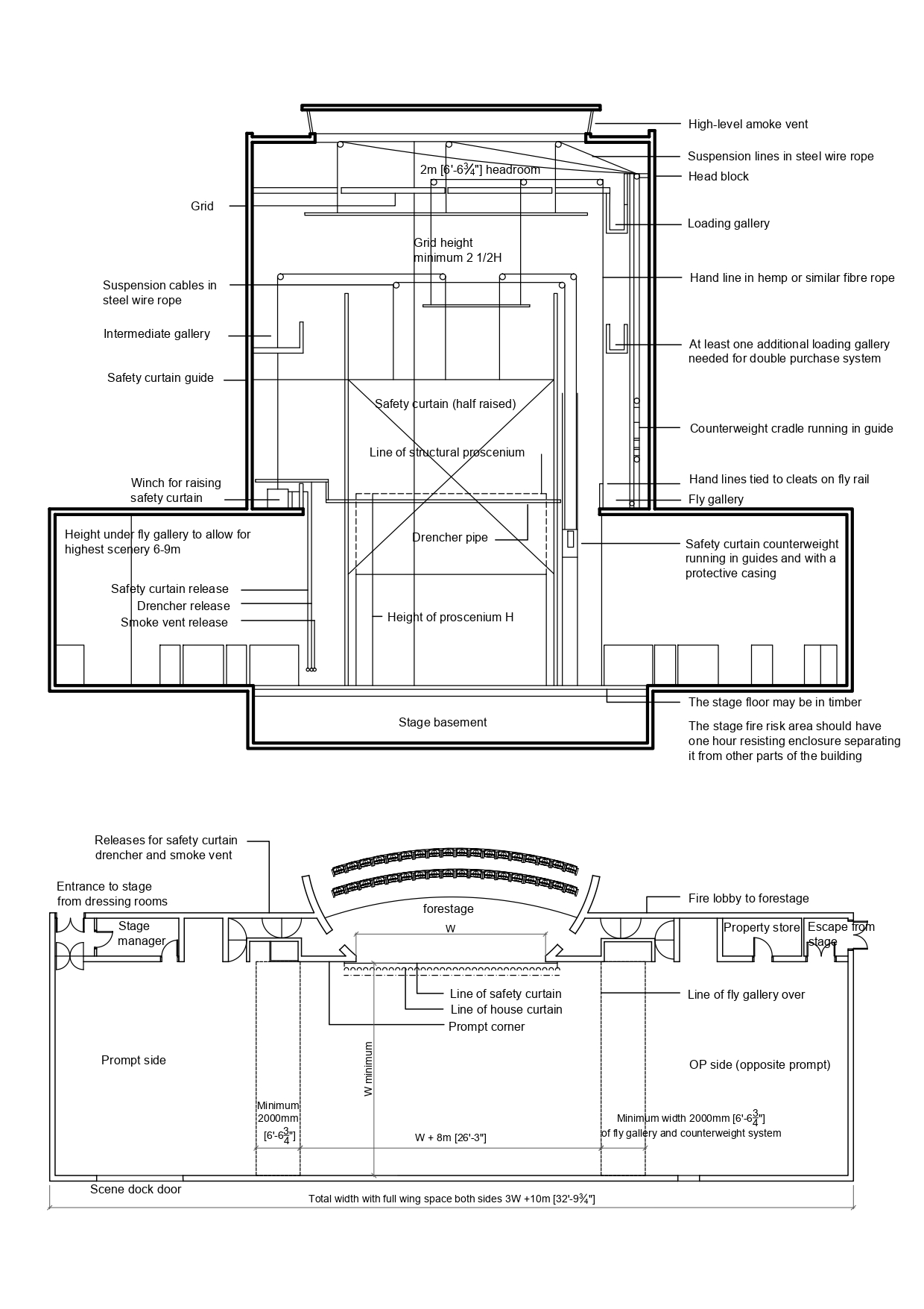
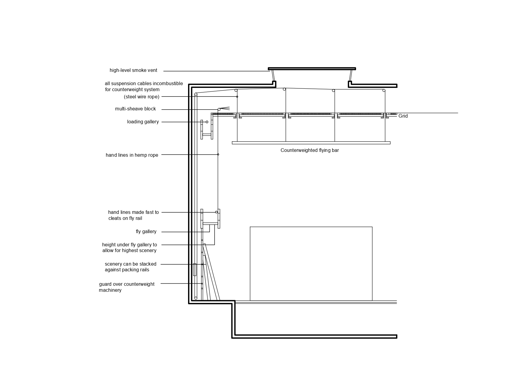
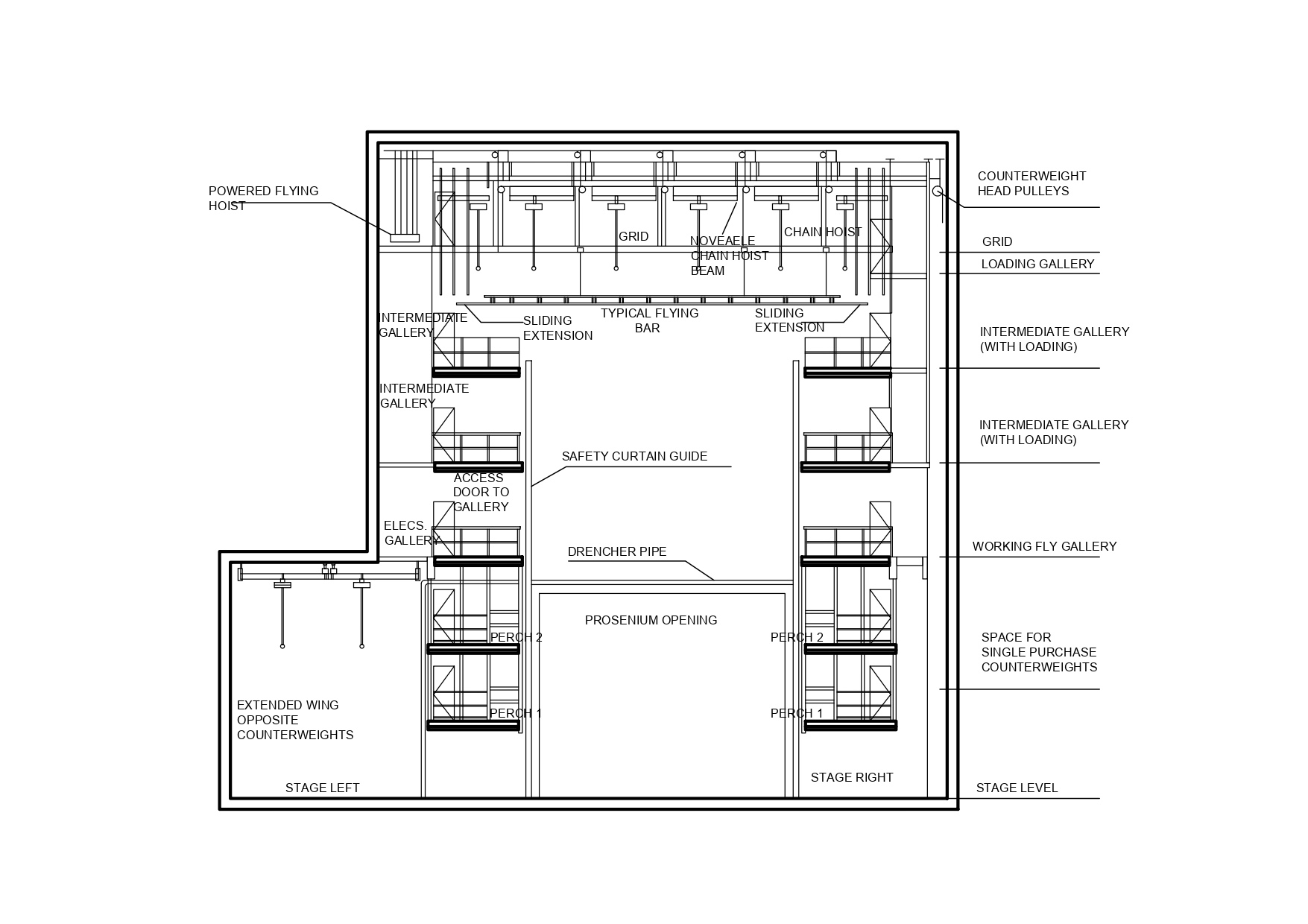
Stage machinery
Item Saved
Item Removed


