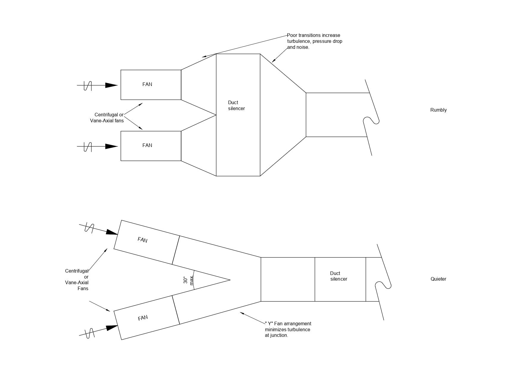
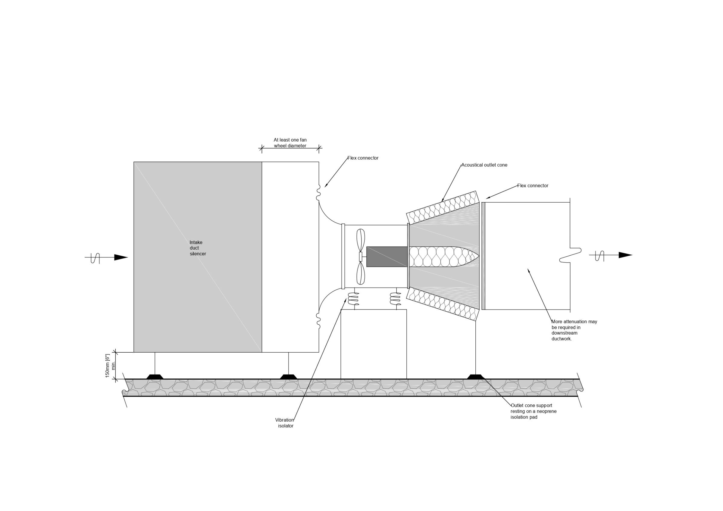
Acoustic-Noise control
|
Air handling units and fan-coil units
Item Saved
Item Removed




