Town Houses & Villas
|
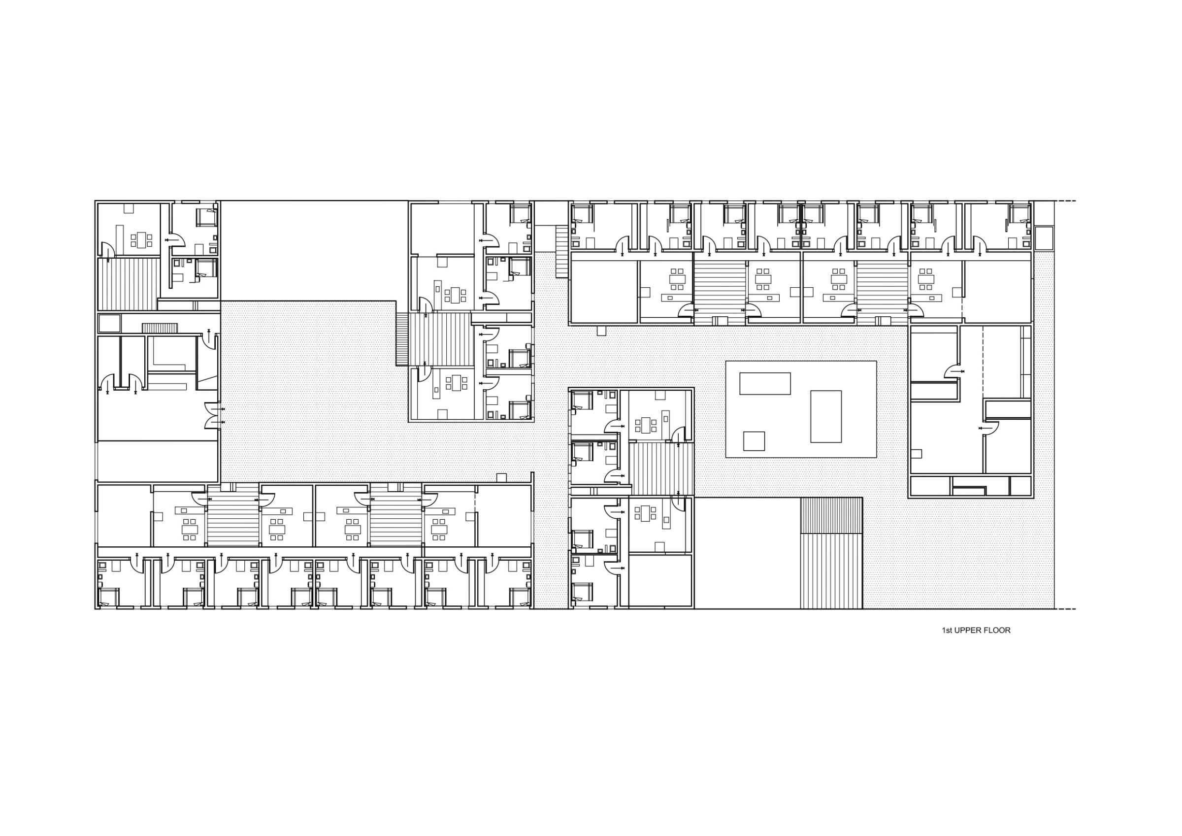
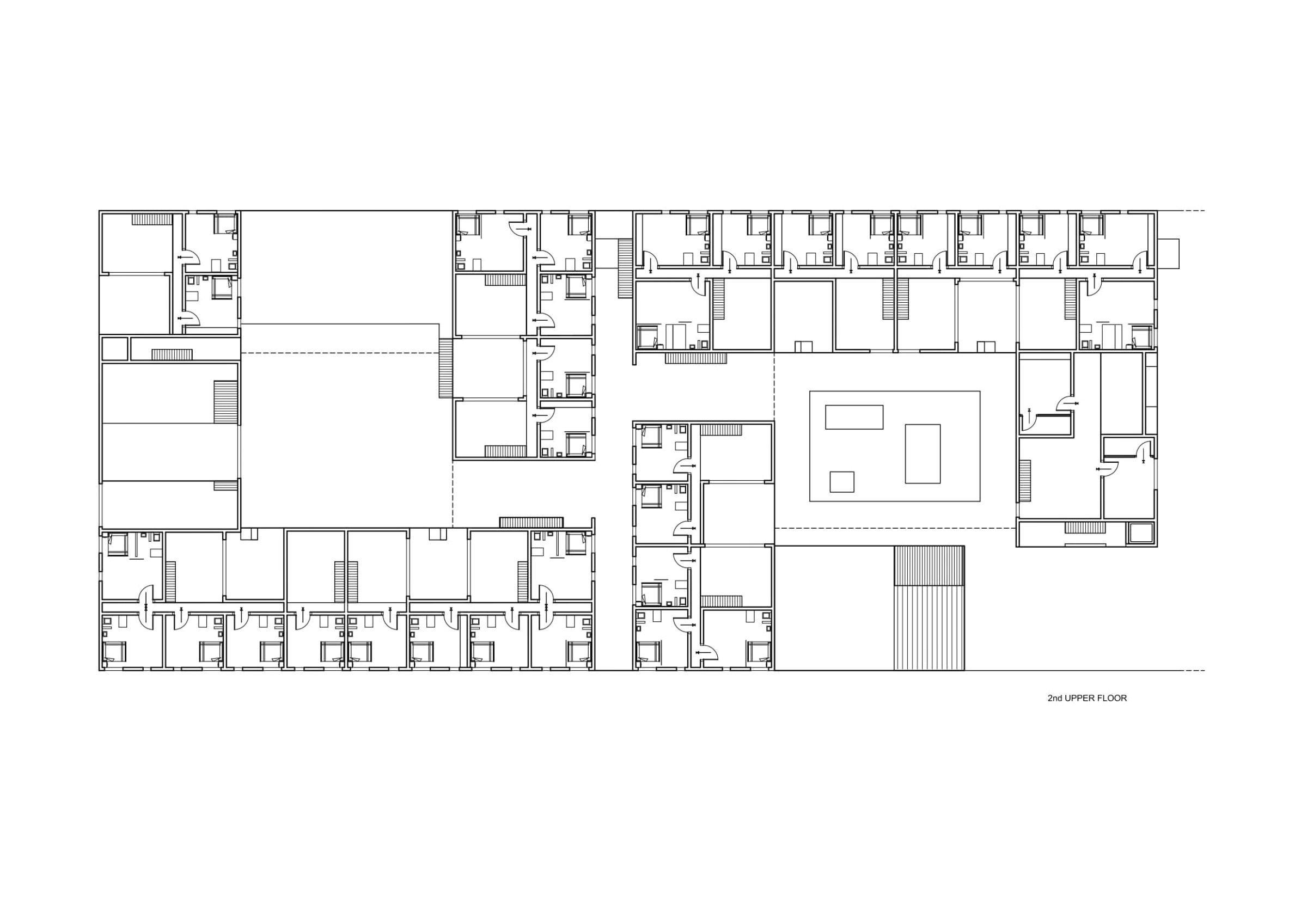
Town houses floor plans
Item Saved
Item Removed

