Town Houses & Villas
|
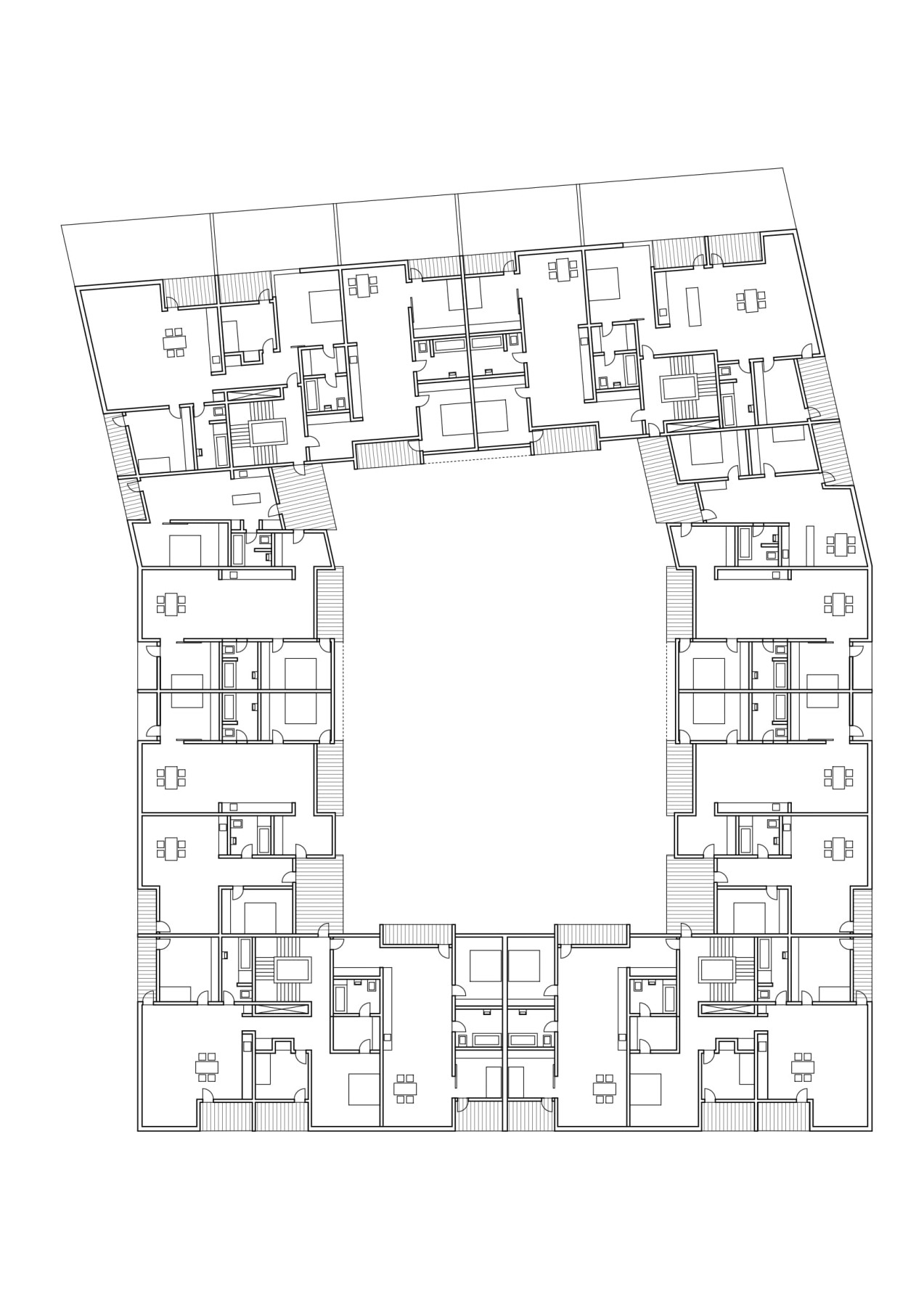
Town houses perimeter block-continuous-six to seven storeys-all directions
Item Saved
Item Removed


