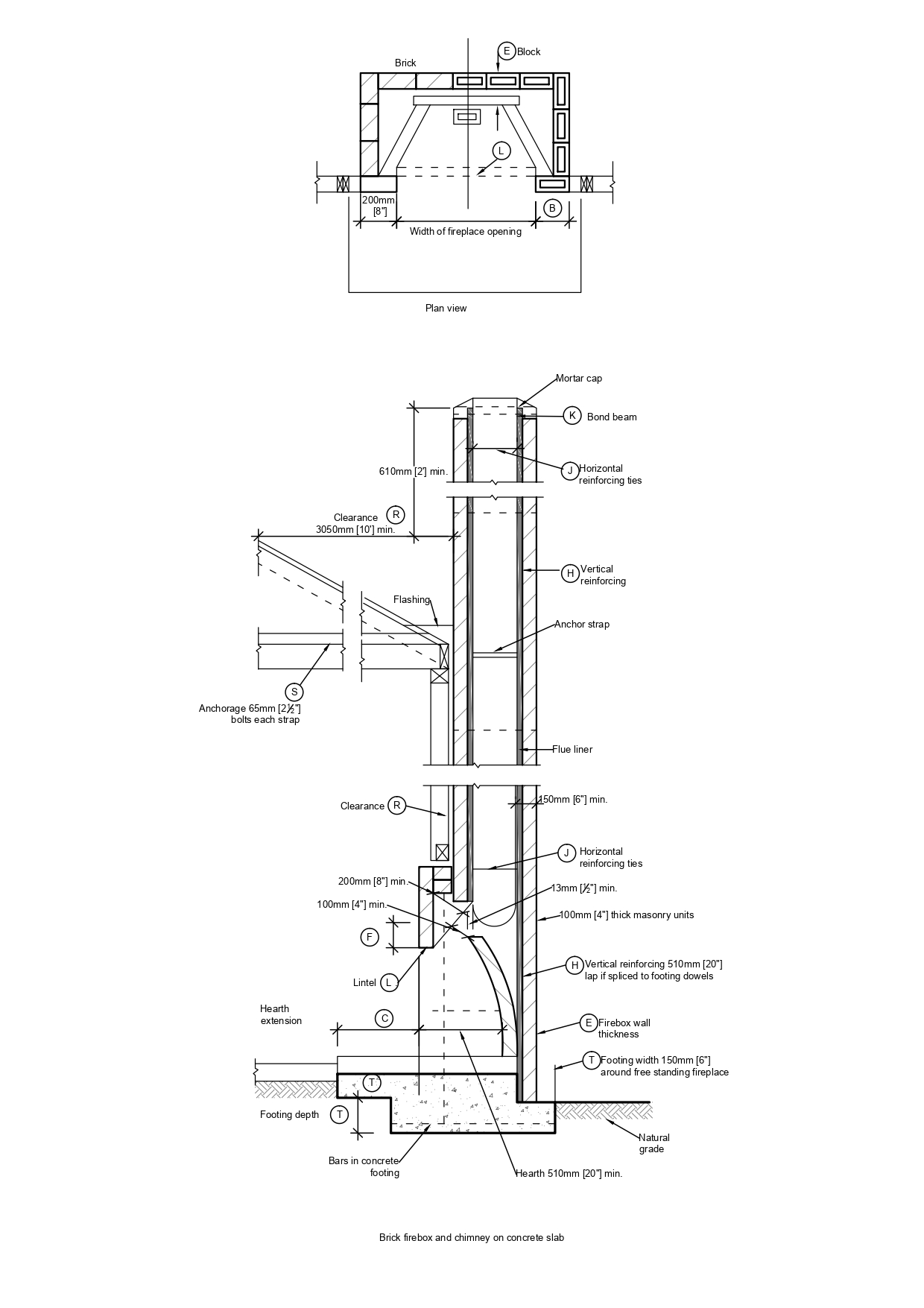
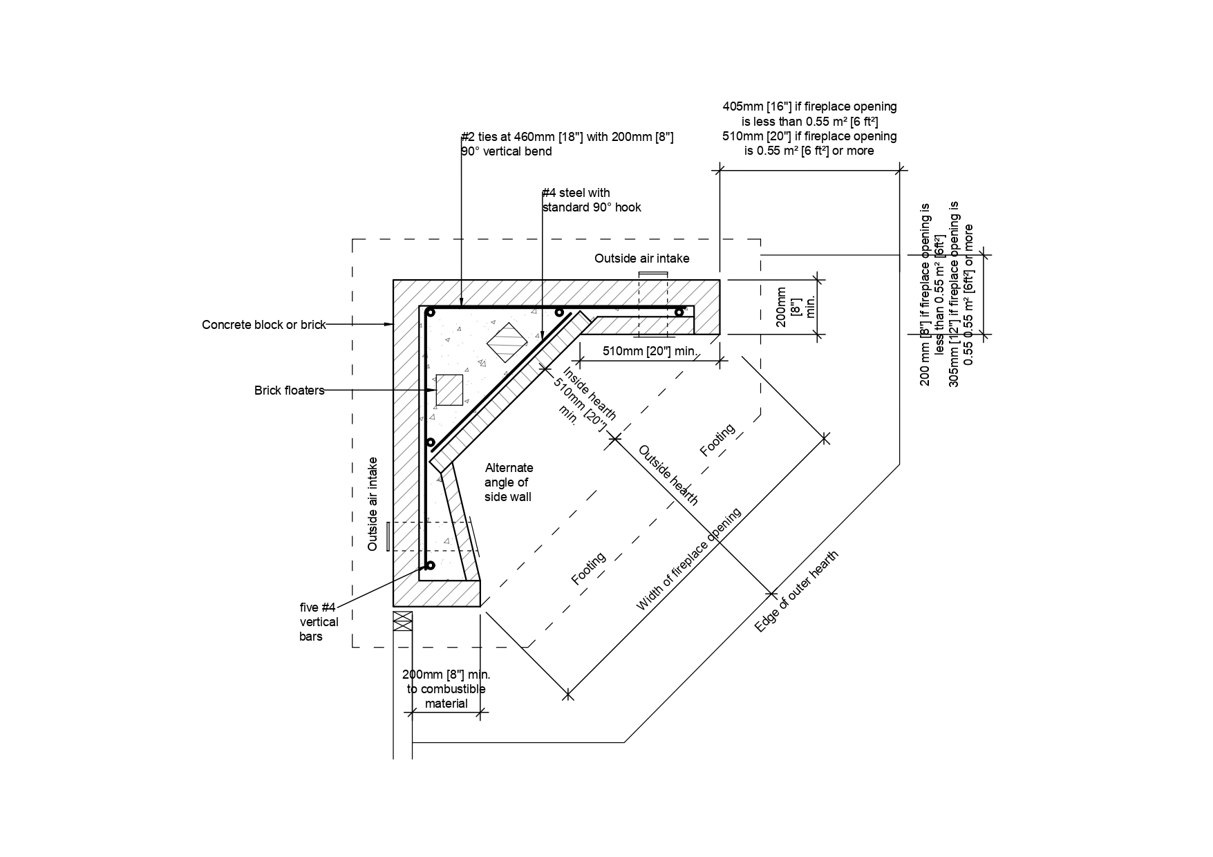
Fireplaces & chimneys
|
Residential masonry fireplaces
Item Saved
Item Removed






