Roads & transportation
|
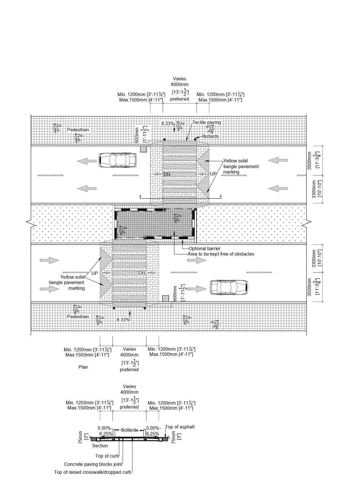
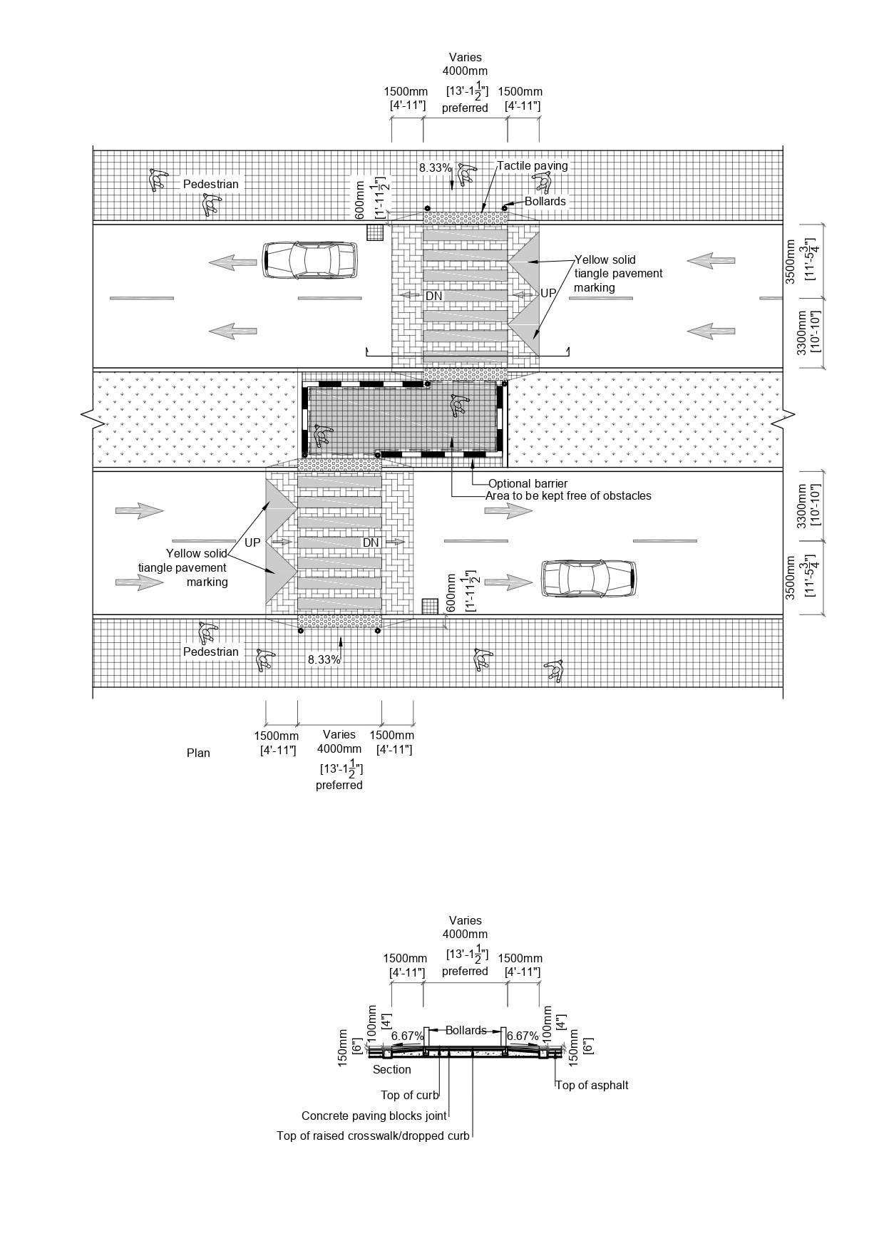
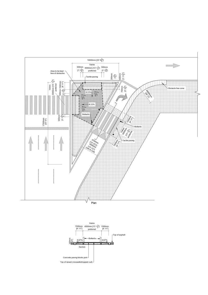
Street crossing design
Item Saved
Item Removed










