Roads & transportation
|
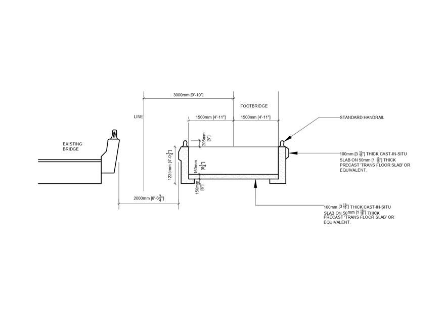
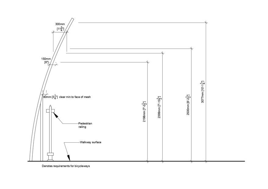
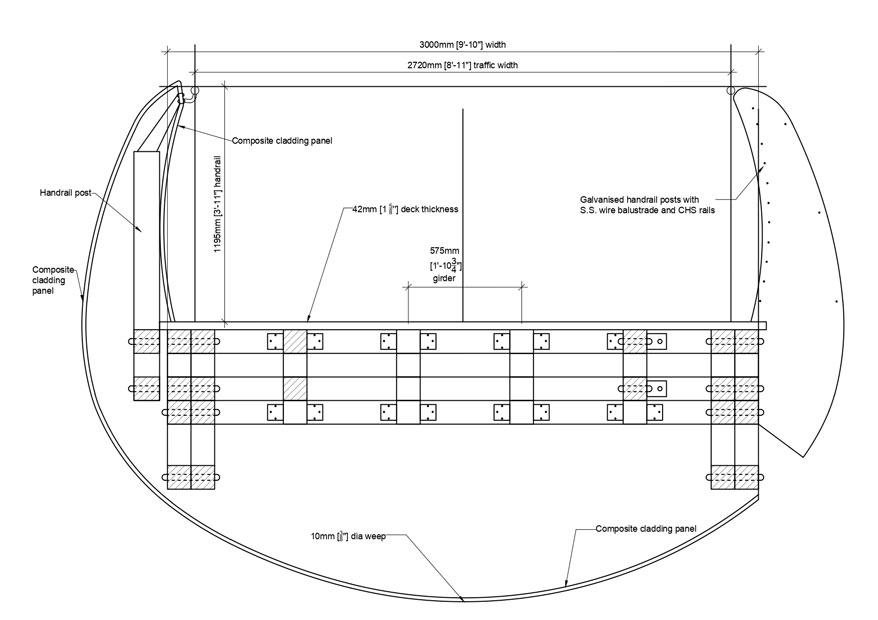
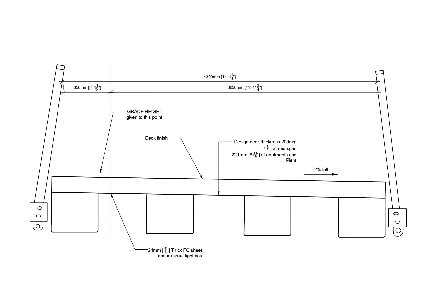
Pedestrian and cyclists bridges
Item Saved
Item Removed



















