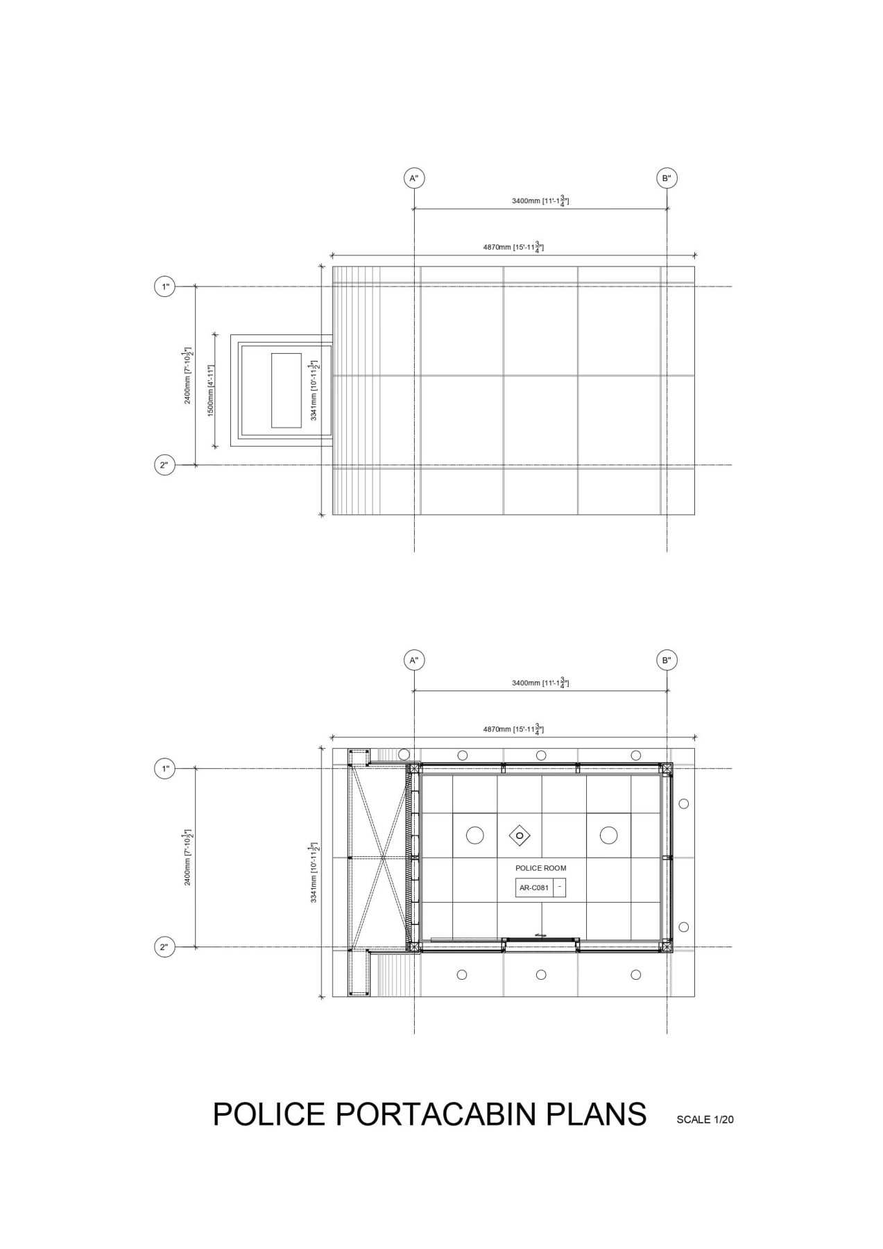
POLICE PORTACABIN
|
Police Portacabin Details
Item Saved
Item Removed








