Landscape construction
|
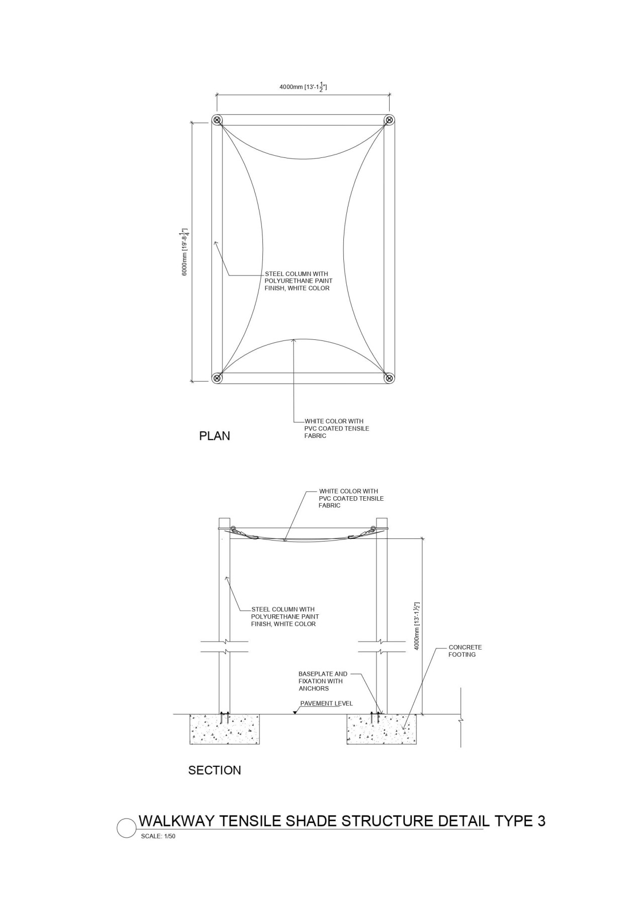
Shade structure
Item Saved
Item Removed


