Kitchens
|
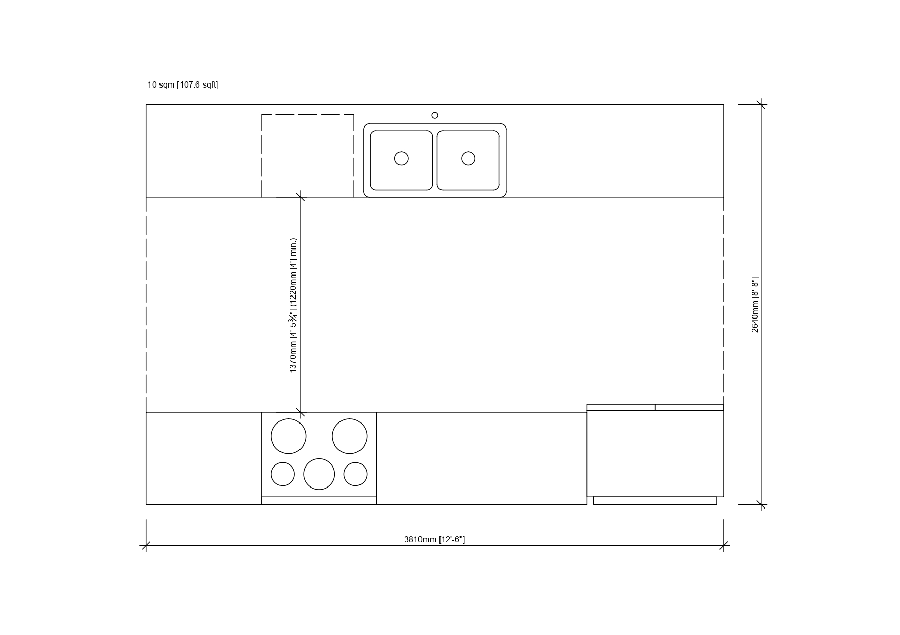
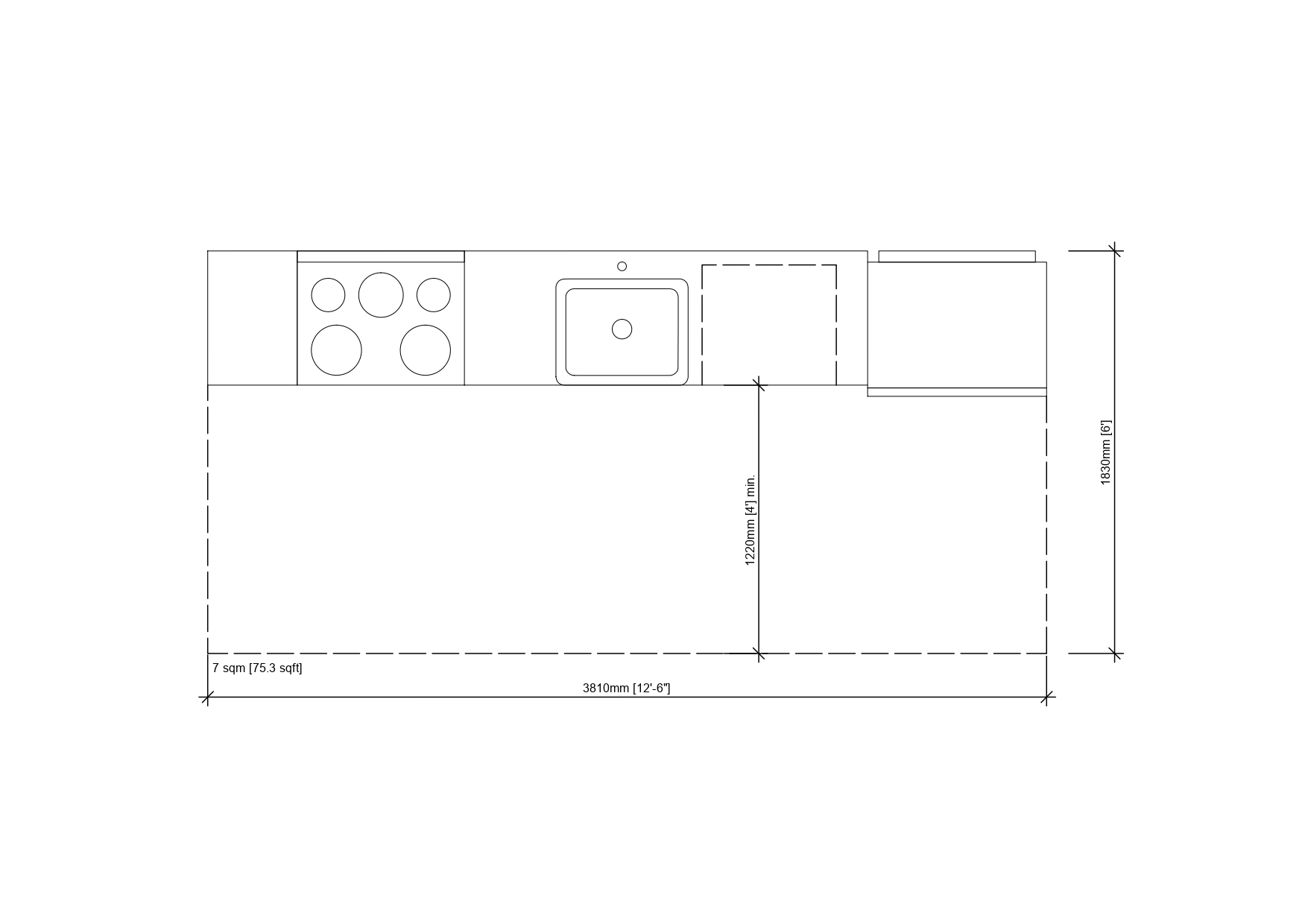
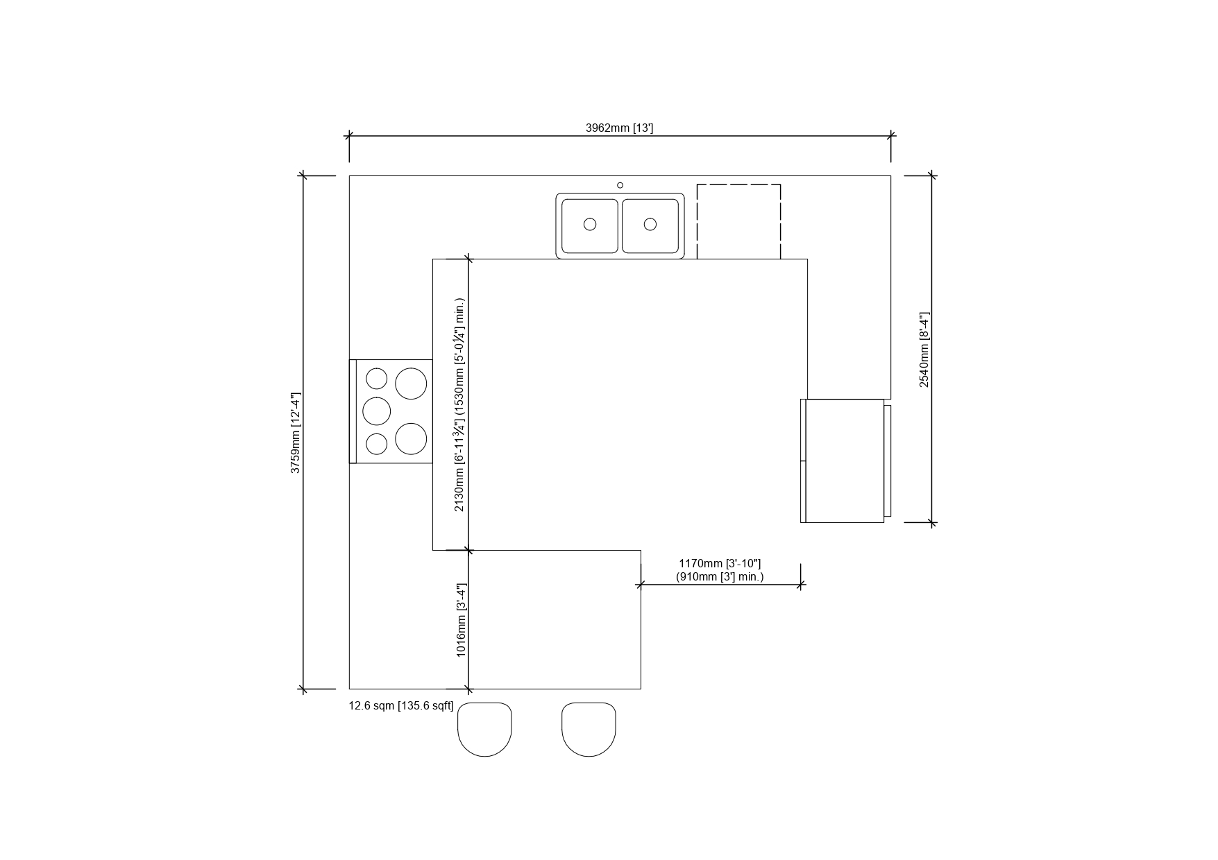
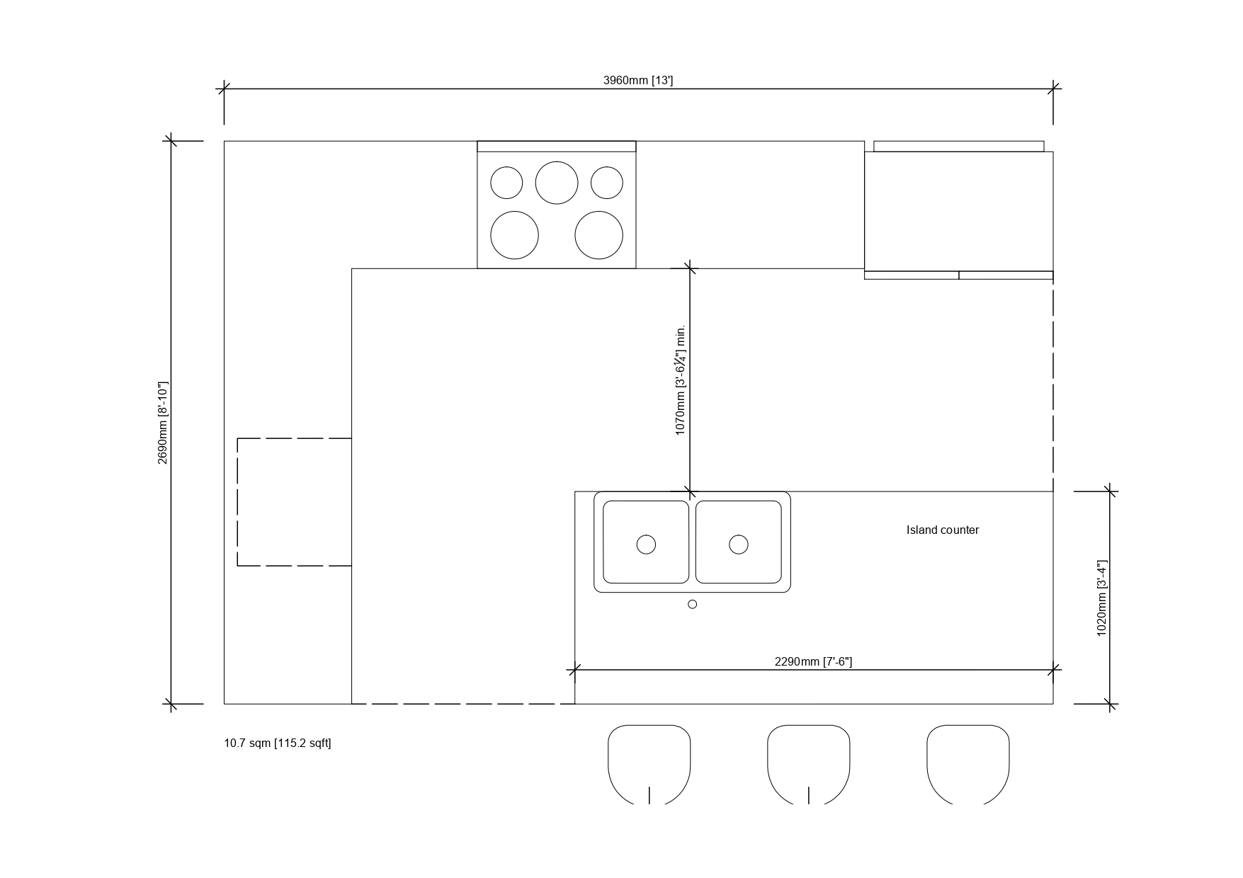
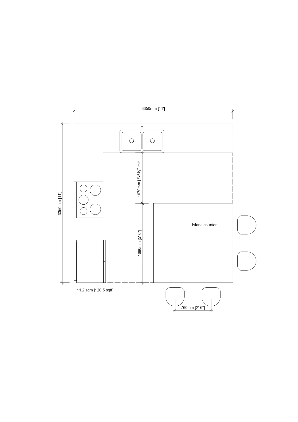
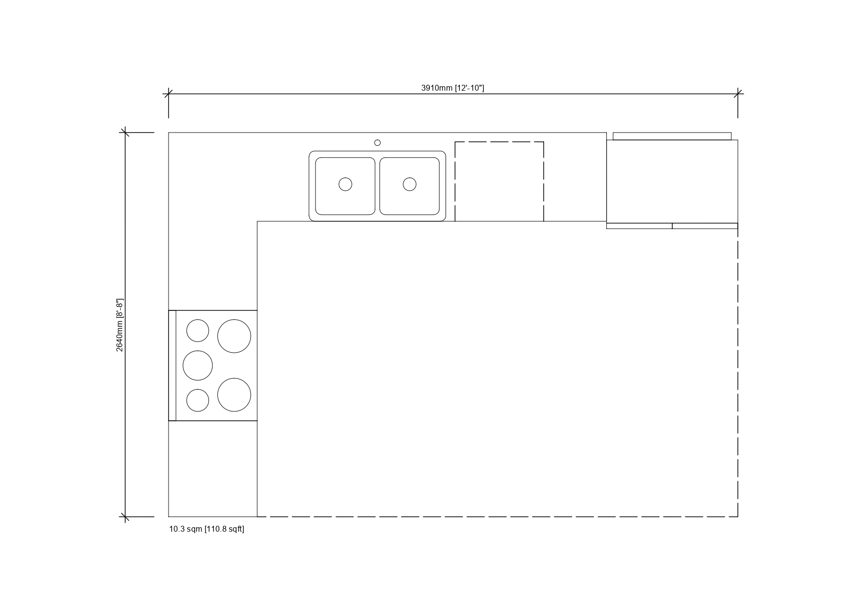
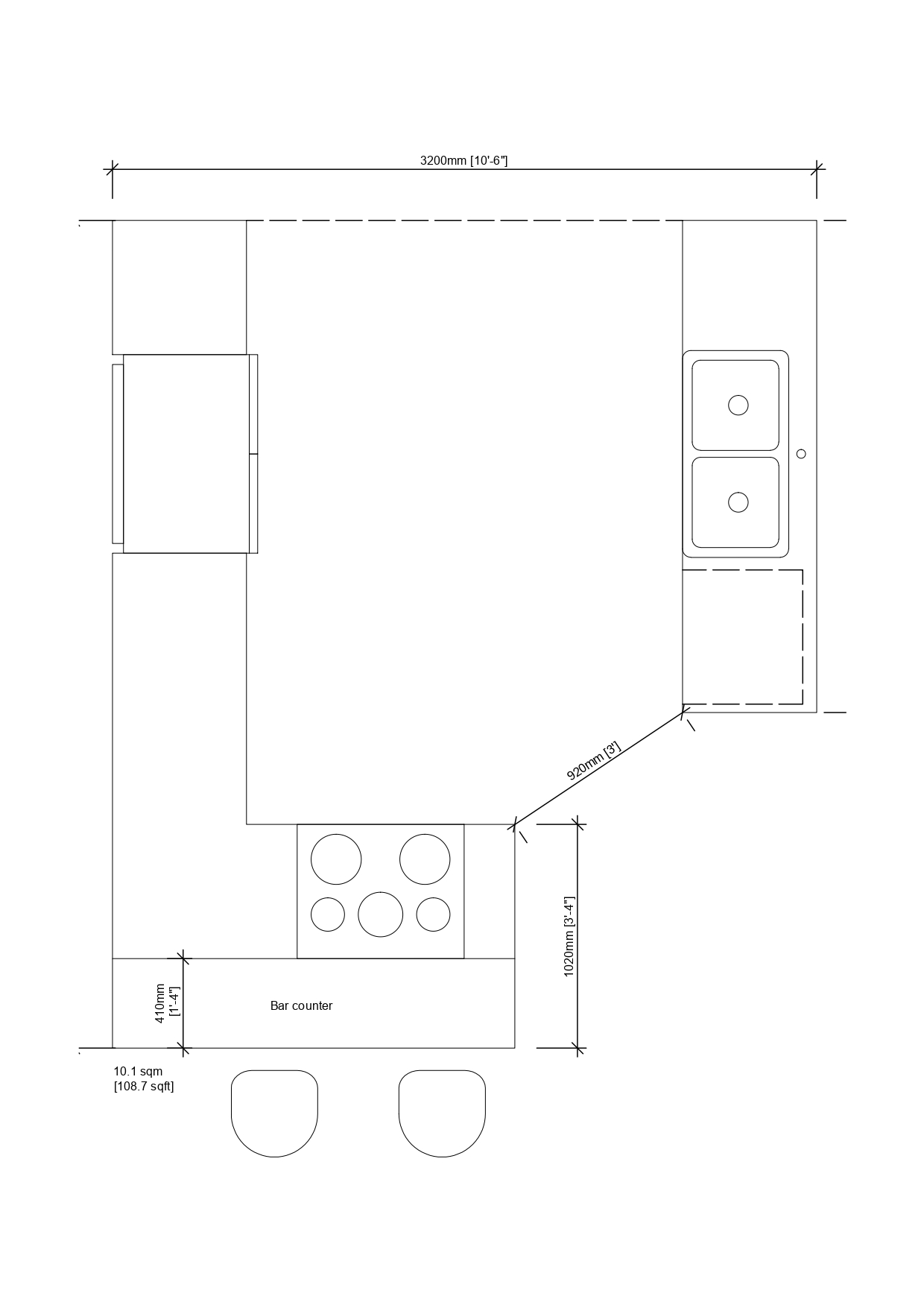
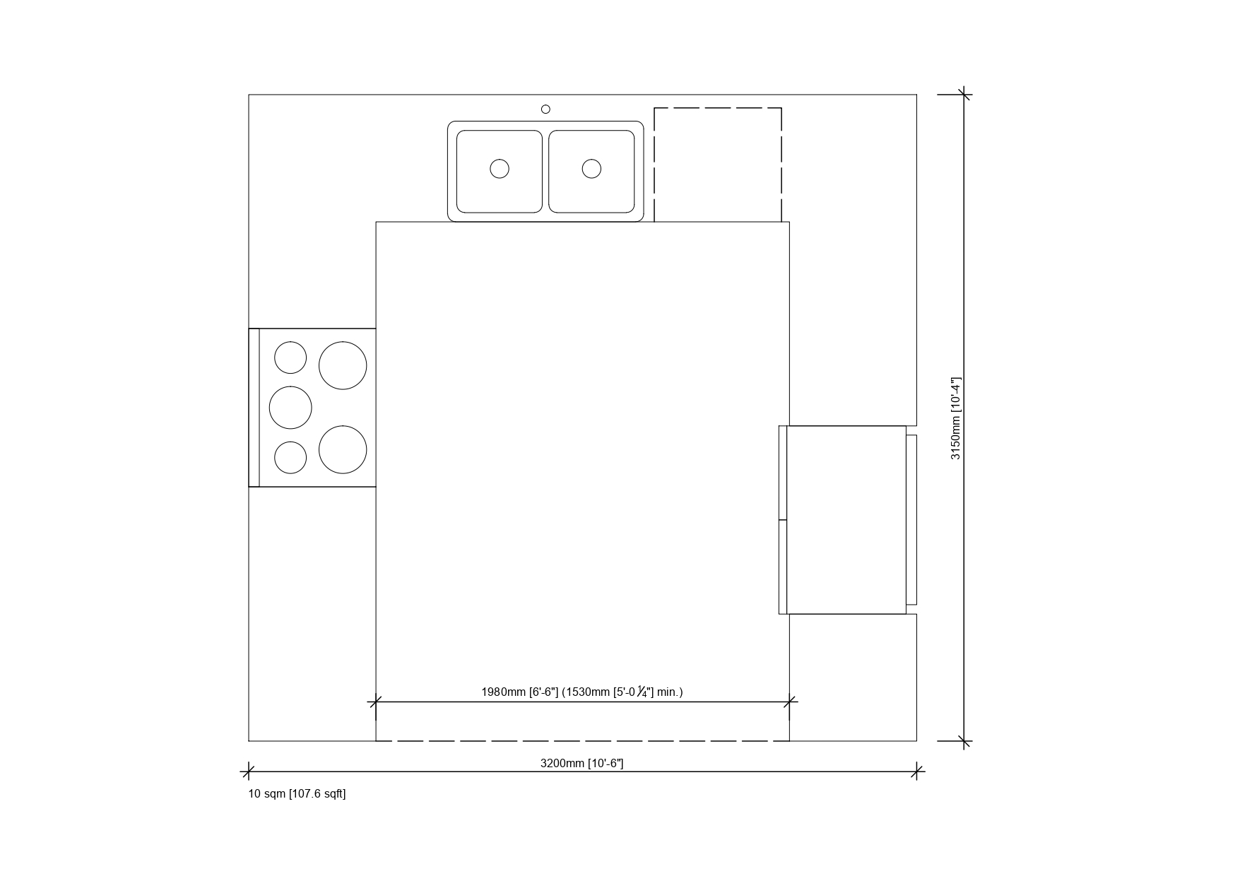
Residential kitchen layout
Item Saved
Item Removed








