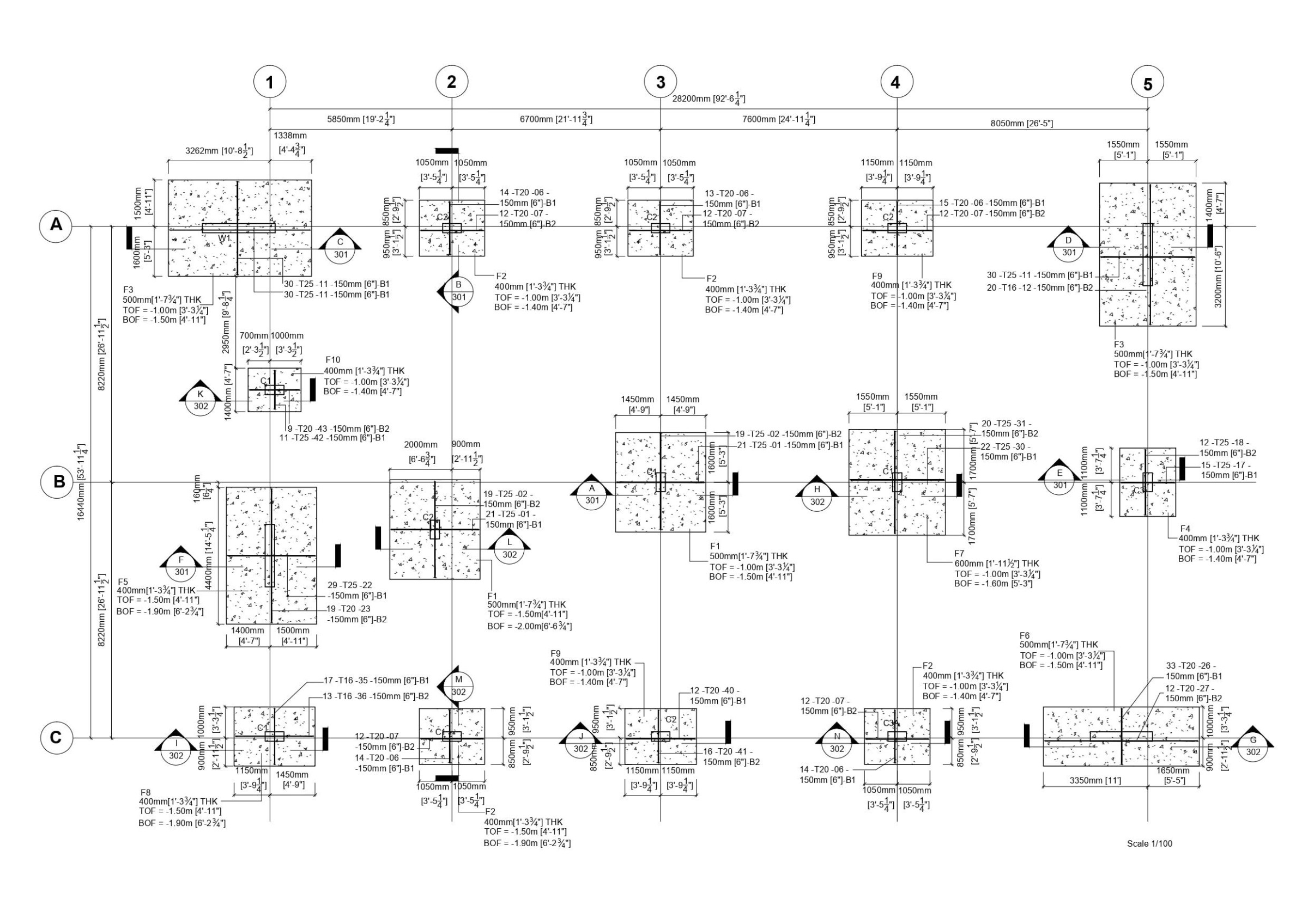
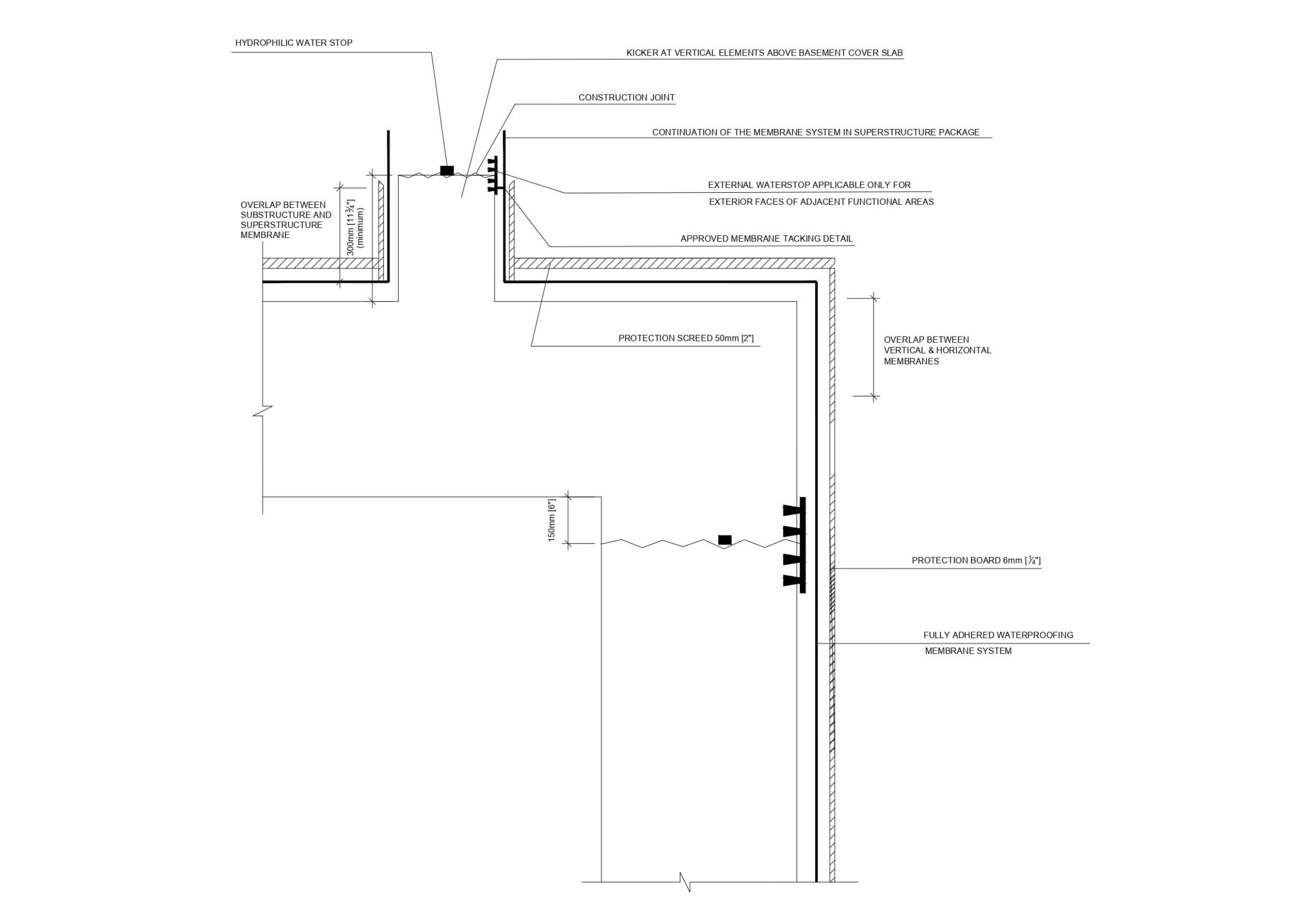
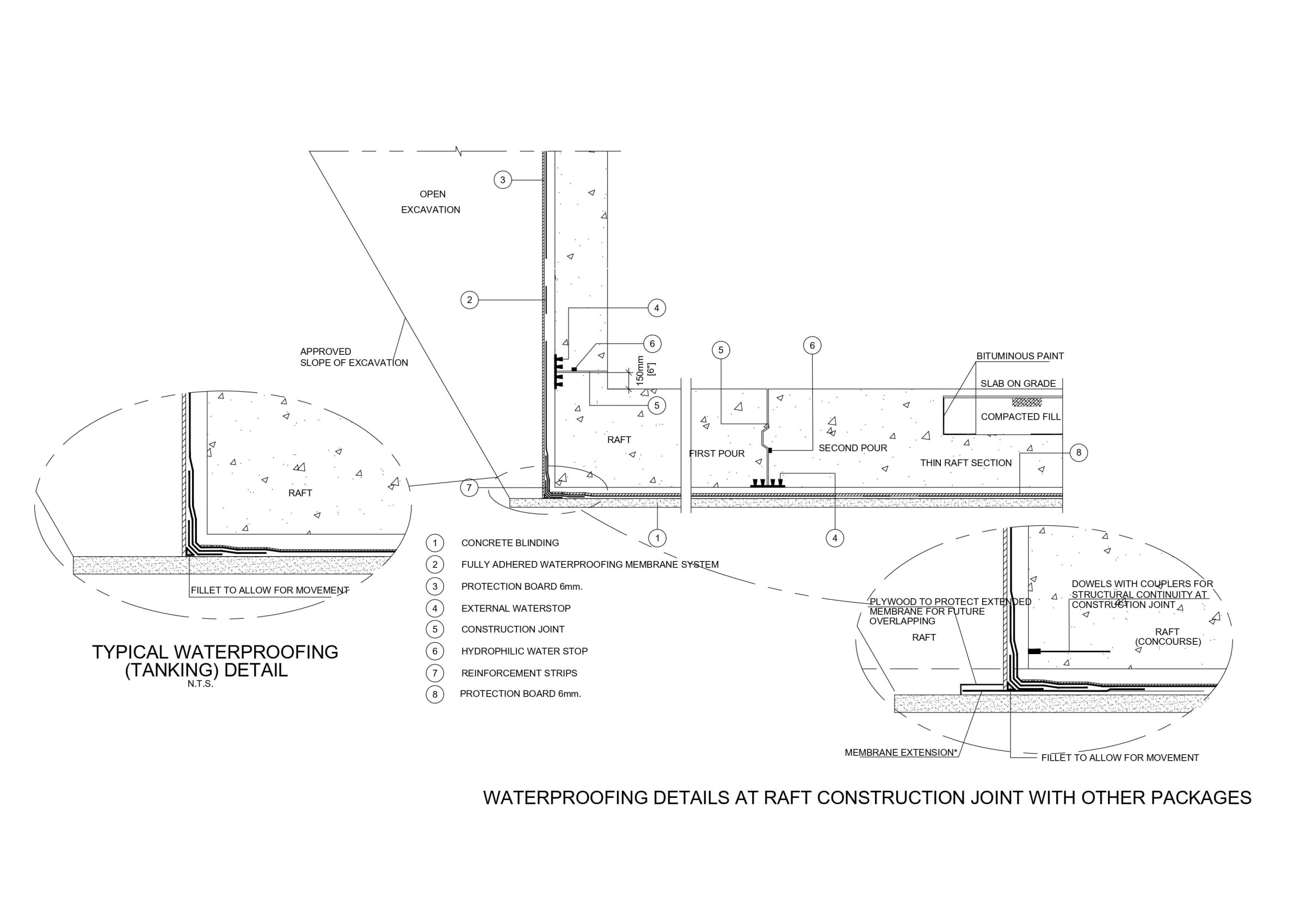
FOUNDATION
|
Standard foundations
Item Saved
Item Removed



























