Kitchens
|
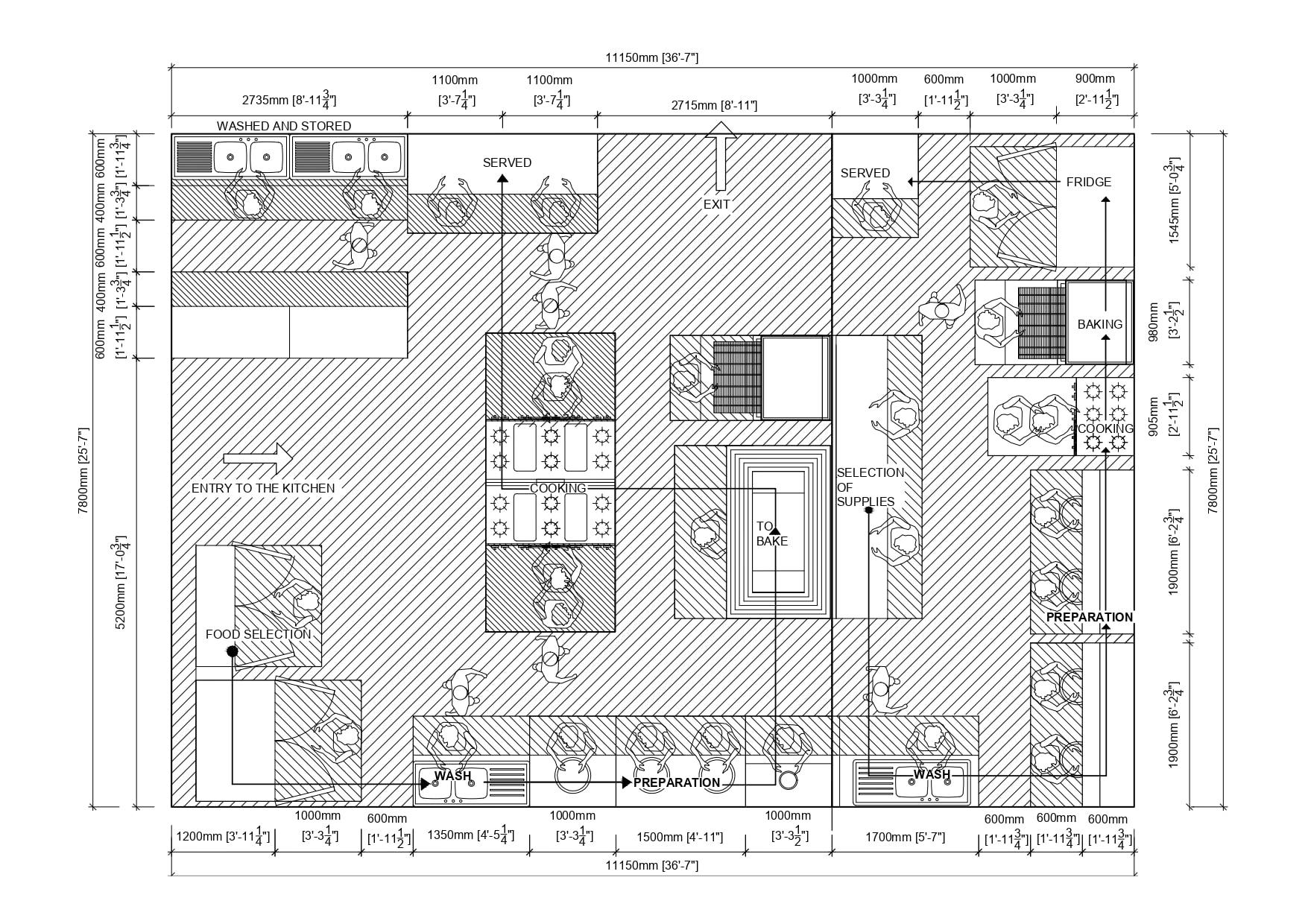
Industrial kitchen layout
Item Saved
Item Removed
