MECHANICAL
|
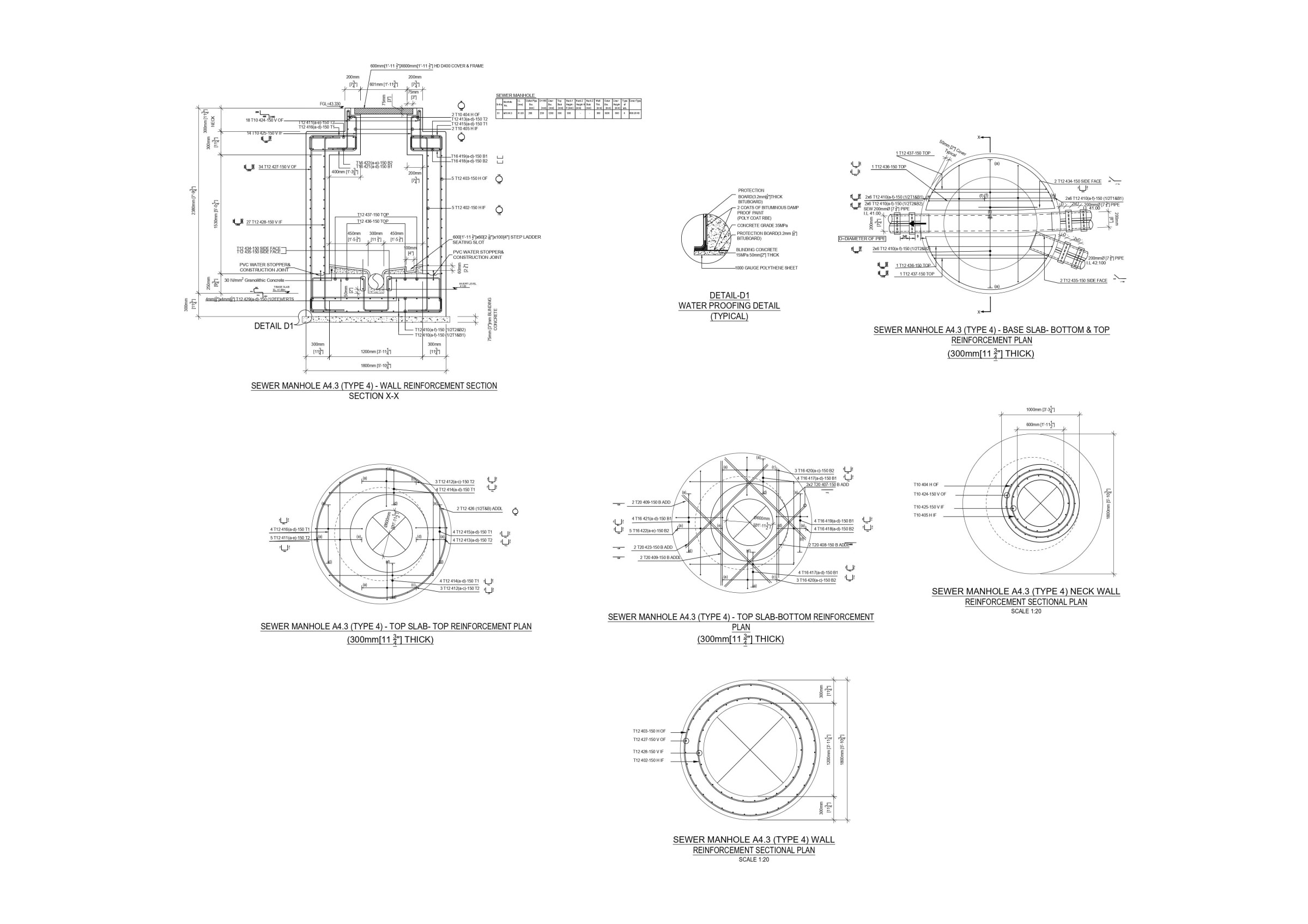
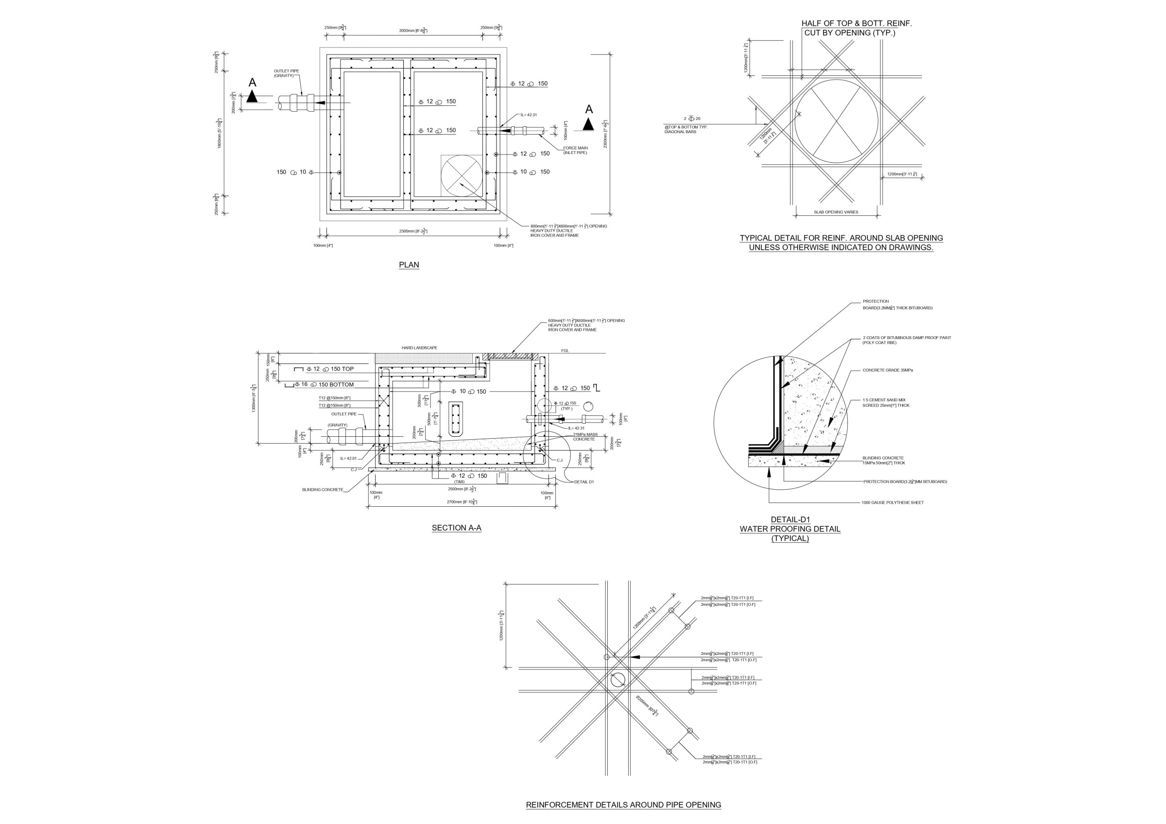
Sanitary sewer systems
Item Saved
Item Removed


