Laundry rooms
|
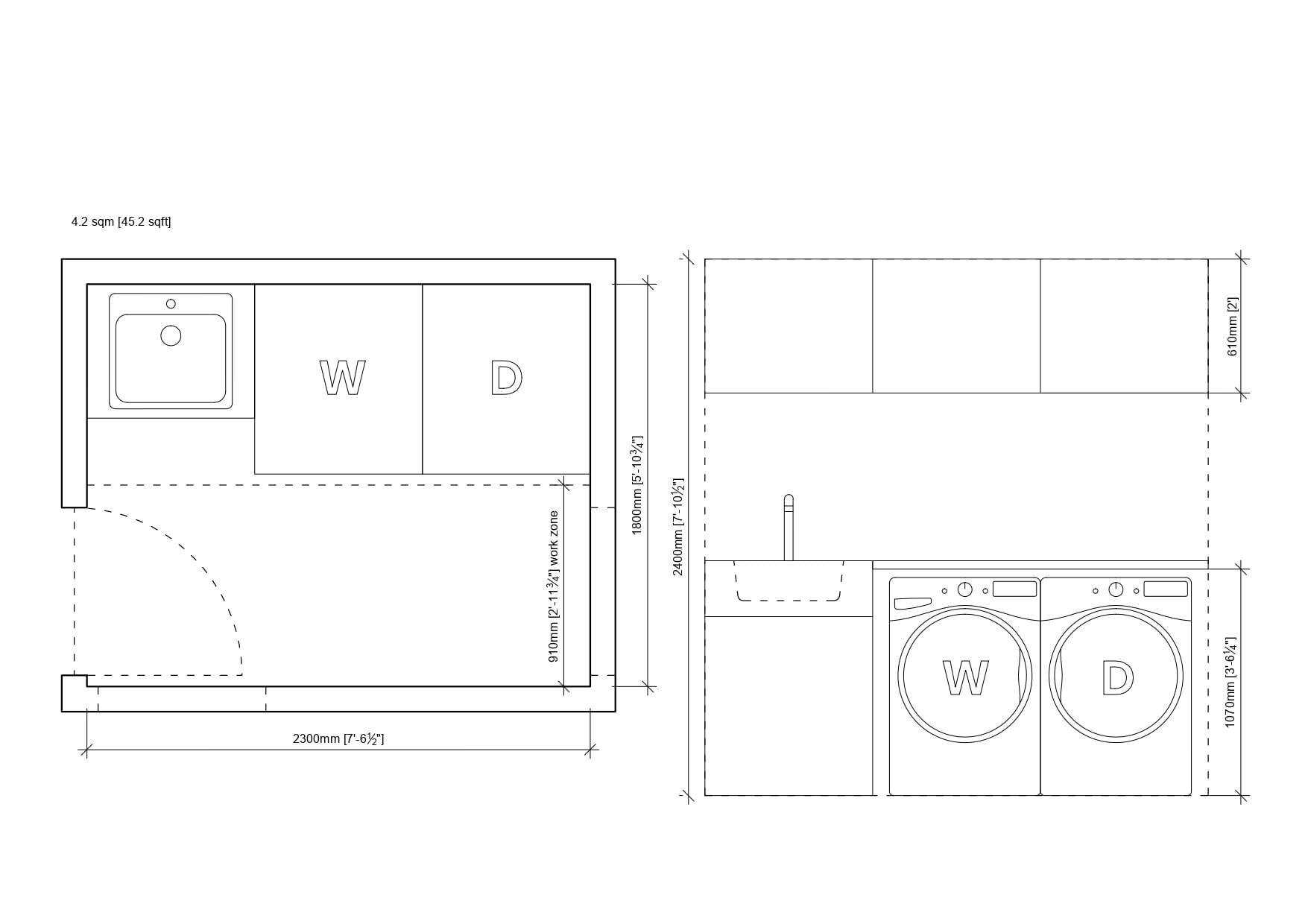
Laundry room layout
Item Saved
Item Removed











