Food service
|
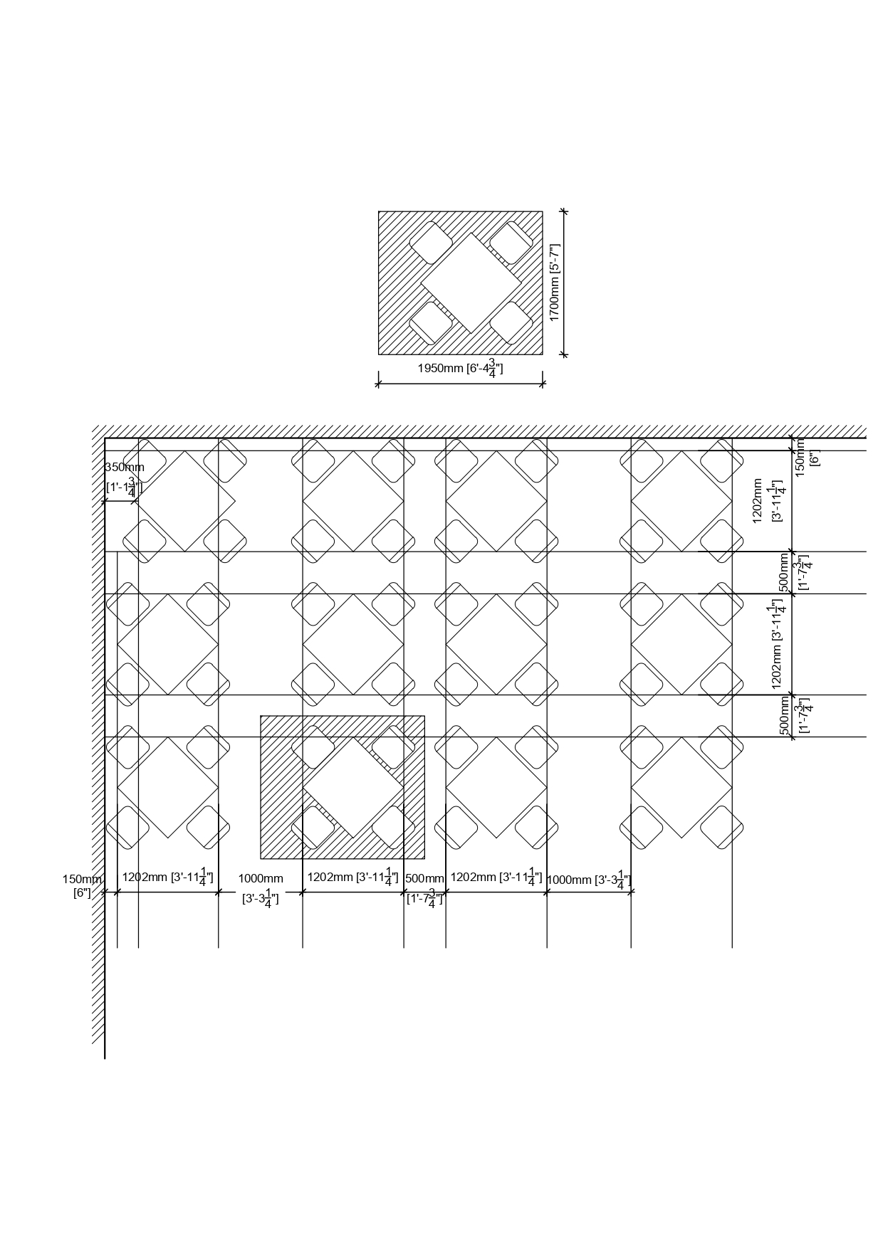
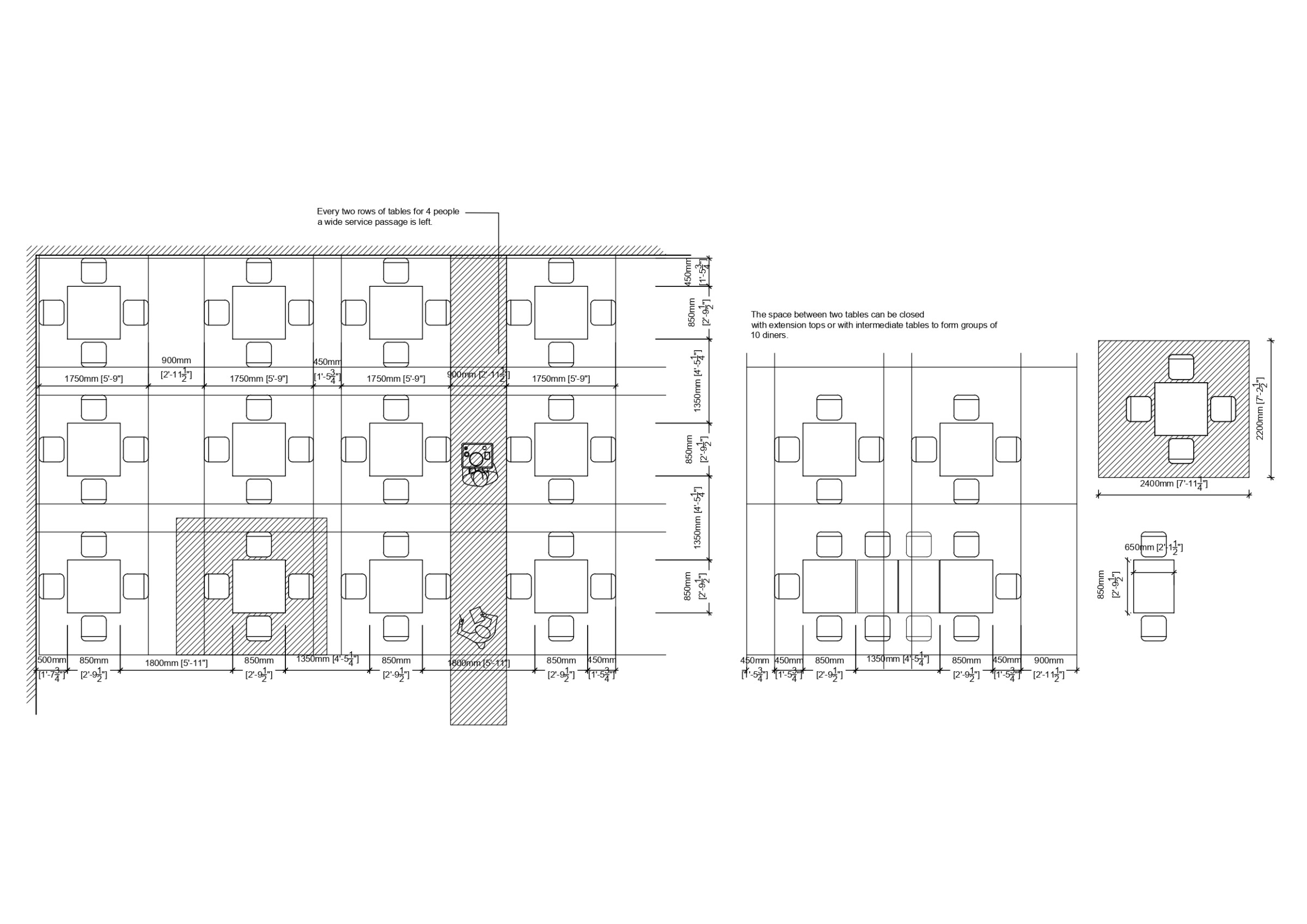
Seating arrangement
Item Saved
Item Removed






