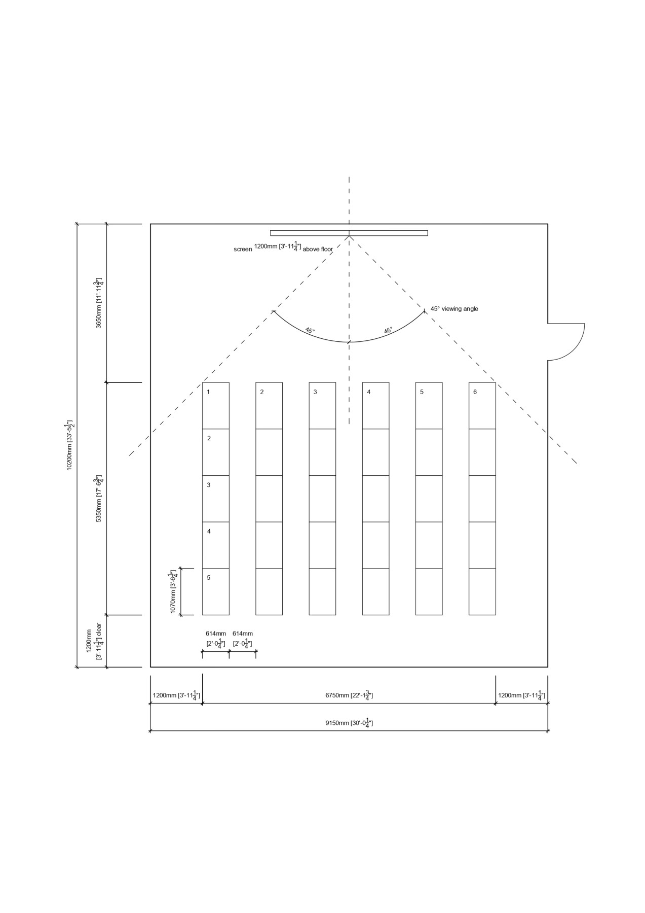
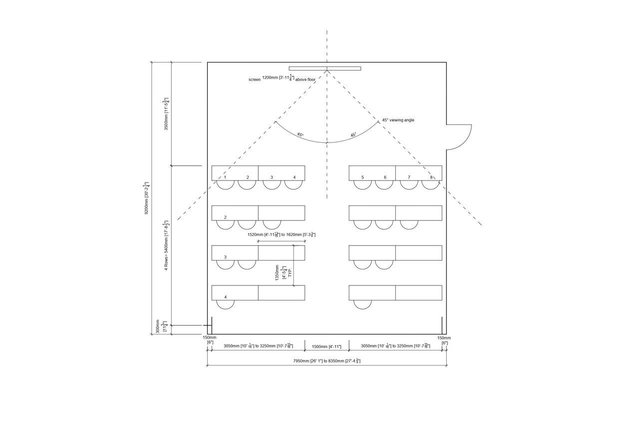
Classrooms
|
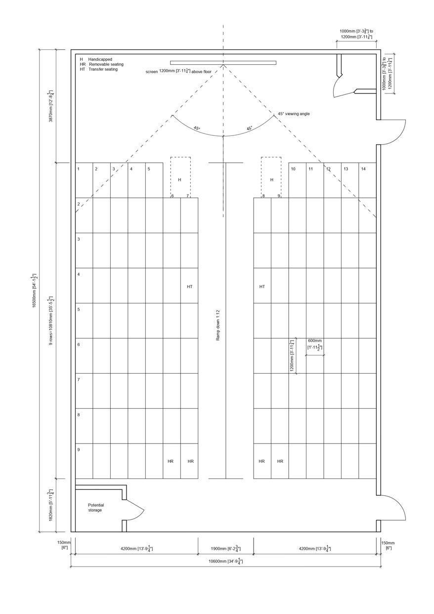
Universities lecture theaters
Item Saved
Item Removed
















