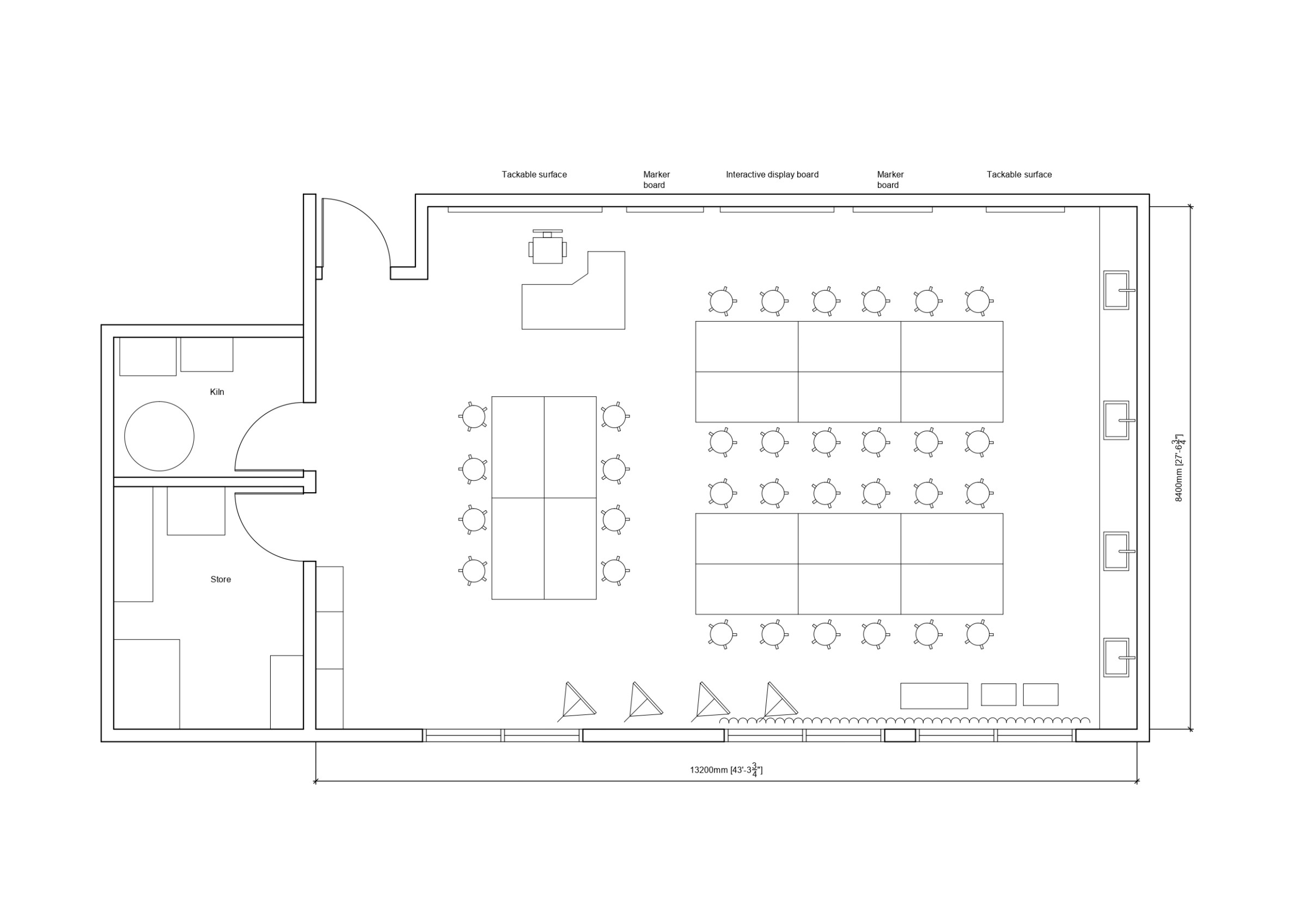
Classrooms
|
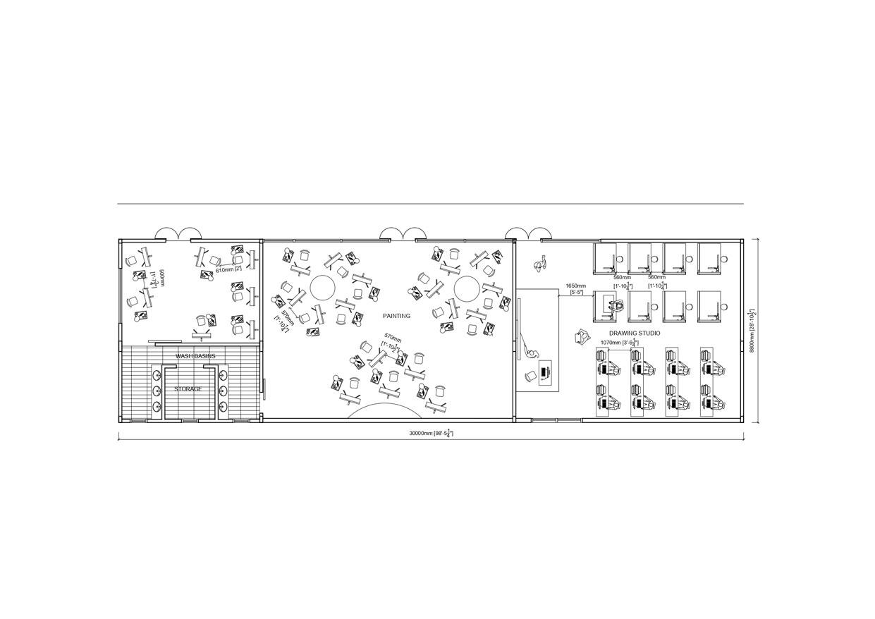
Art drawing studios and music room
Item Saved
Item Removed













